恭王府四合院平面图

北京旅游必须去的地方一一一一北京恭王府,这是恭王府全景
图片尺寸780x1319
恭王府平面图
图片尺寸1200x1740
恭王府
图片尺寸864x1152
1906浅探四合院范例-恭王府
图片尺寸2000x2666
恭王府平面图;清代规模最大的一座王府,曾先后作为和珅,永璘的宅邸,后
图片尺寸1500x1692
恭王府平面图;清代规模最大的一座王府,曾先后作为和珅,永璘的宅邸,后
图片尺寸2250x3079
恭王府20190829
图片尺寸1824x3648
恭王府平面图;清代规模最大的一座王府,曾先后作为和珅,永璘的宅邸,后
图片尺寸1500x999
四合院
图片尺寸917x2968
北京之行4—恭王府
图片尺寸2000x2666
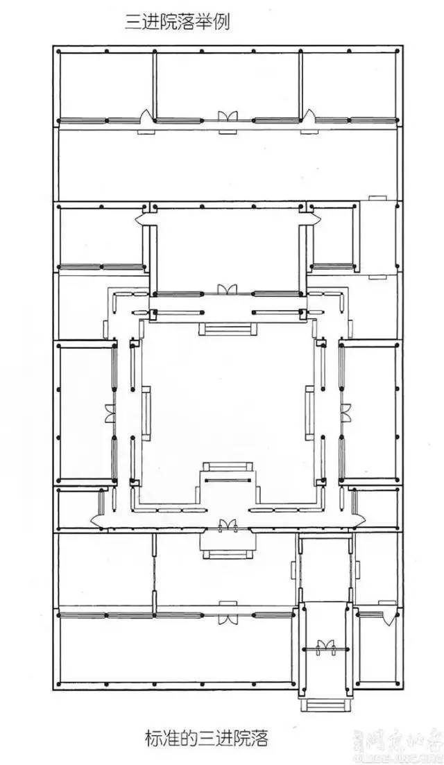
三进四合院平面图
图片尺寸640x1103
带孙游恭王府710
图片尺寸4032x3016
恭王府地图
图片尺寸2667x2000
带你参观古往今来的四合院
图片尺寸750x600
投石问路|超越相机带着手机,玩转北京恭王府一日游
图片尺寸1200x1197
中国最大的四合院——恭王府
图片尺寸600x378
恭王府平面图恭王府位置图恭王府选址位置绝佳.
图片尺寸502x622
三进四合院平面图的布局和结构东方晨光
图片尺寸634x784
【摘录写文参考】明代四合院的格局
图片尺寸1126x1080
恭王府
图片尺寸1338x770