惠州星河丹堤户型图

星河丹堤(惠州星河丹堤)首页网站|惠州星河丹堤售楼处_房价_户型_详情
图片尺寸740x945
惠州房产 惠阳高铁站旁边百万大盘星河丹堤业主急需资金周转现 - 抖
图片尺寸1440x2836
星河丹堤(惠州星河丹堤)首页网站|惠州星河丹堤售楼处_房价_户型_详情
图片尺寸740x915
惠州二手房 97星河丹堤最笋一 - 抖音
图片尺寸1920x1440
星河丹堤 g4 区 125 平138万.#大亚湾二手房 急急 - 抖音
图片尺寸1440x2836
惠州房产 今日笋盘推荐:惠阳豪宅项目星河丹堤v区127平五房127万
图片尺寸1440x2836
惠州星河丹堤
图片尺寸600x735
处_惠州星河丹堤别墅售楼电话【售楼中心】欢迎您_楼盘_户型图_信息
图片尺寸1080x763
惠州星河丹堤(星河丹堤)首页网站丨星河丹堤售楼处_价格_配套_楼盘
图片尺寸960x1759
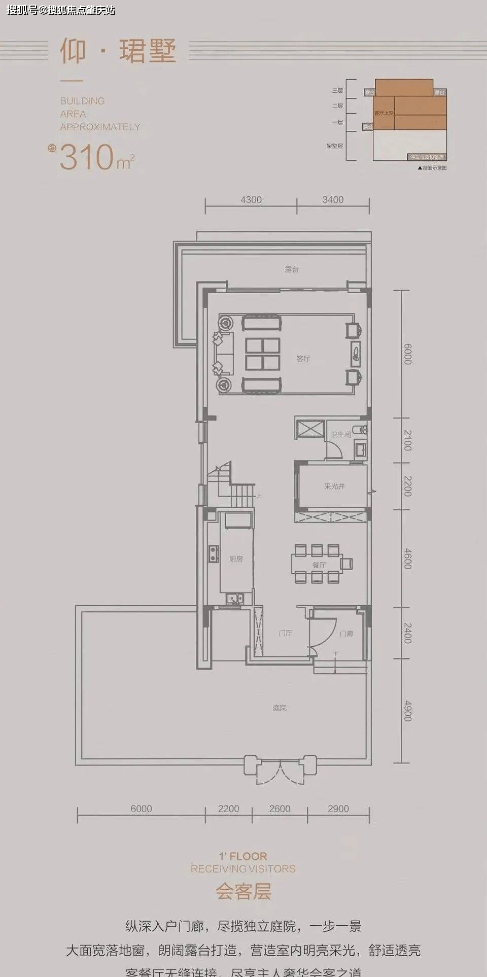
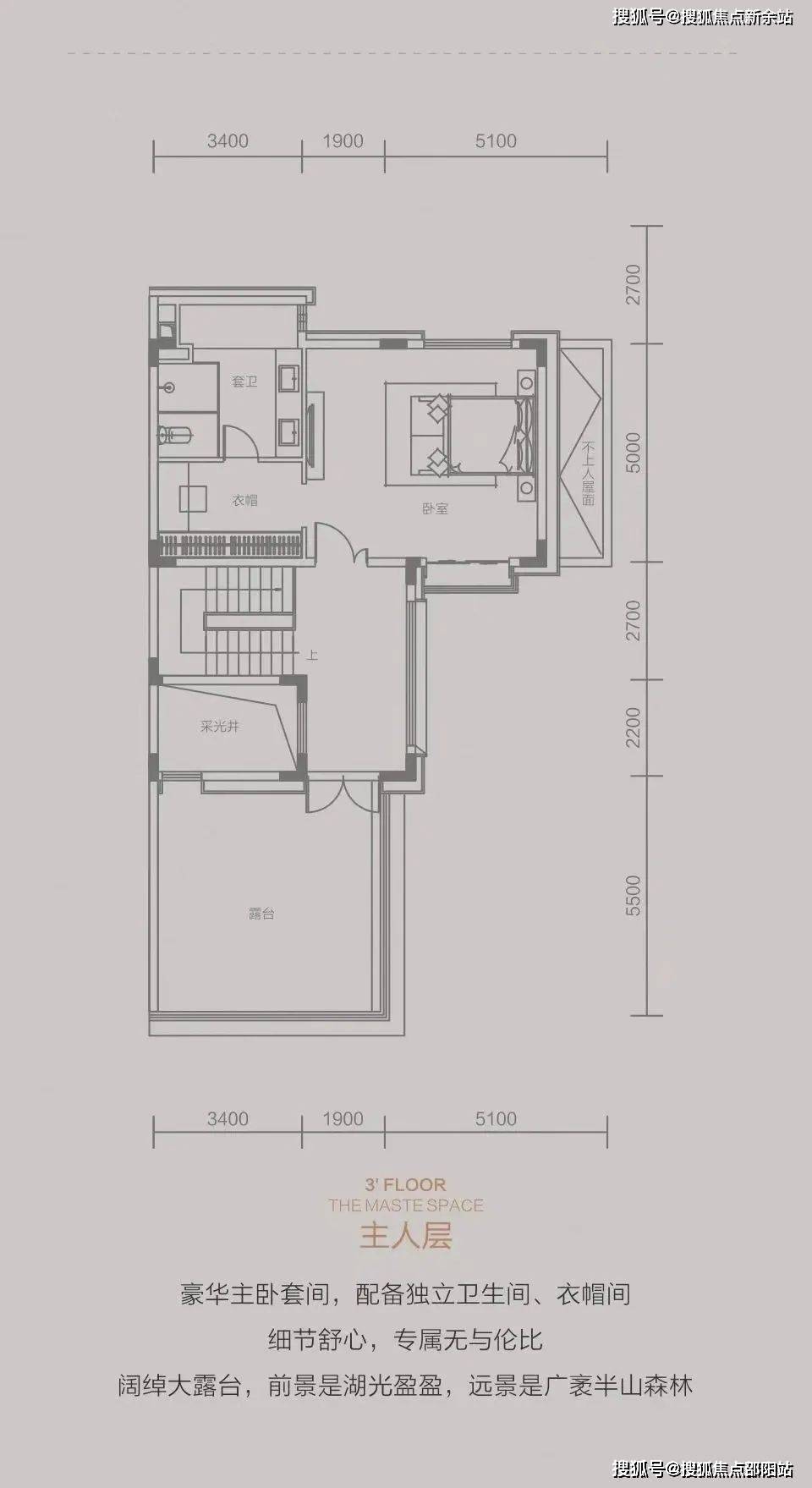
星河丹堤(惠州星河丹堤)首页网站丨星河丹堤楼盘详情_房价_户型_详情
图片尺寸959x5428
惠州星河丹堤南北通四房140万
图片尺寸1080x864
惠州星河丹堤花园
图片尺寸1200x900
星河丹堤g区_惠州星河丹堤g区房价_楼盘怎么样-惠州楼盘网
图片尺寸5032x3556
2024年惠州星河丹堤星河丹堤售楼中心星河丹堤售楼电话
图片尺寸948x650
星河丹堤-惠州(星河丹堤)楼盘网站丨星河丹堤欢迎您丨星河丹堤丨楼盘
图片尺寸960x1926
惠州星河丹堤雅睿c户型户型图
图片尺寸800x600
惠州星河丹堤湖璨124_惠州星河丹堤户型图-深圳搜狐焦点网
图片尺寸525x700
惠州星河丹堤
图片尺寸860x630
惠州星河丹堤户型图 - 惠州乐居
图片尺寸538x900
惠阳豪宅星河丹堤单价13万笋盘
图片尺寸1080x871