房子构造图平面

别墅设计经典欧式设计风带书房阳台的主卧清新灵气又自然
图片尺寸2741x3024
三层平面图.jpg
图片尺寸2000x2000
7套经典户型,10个实建案例,看看拿住宅公园的图纸建房,房子有多美!
图片尺寸1080x1254
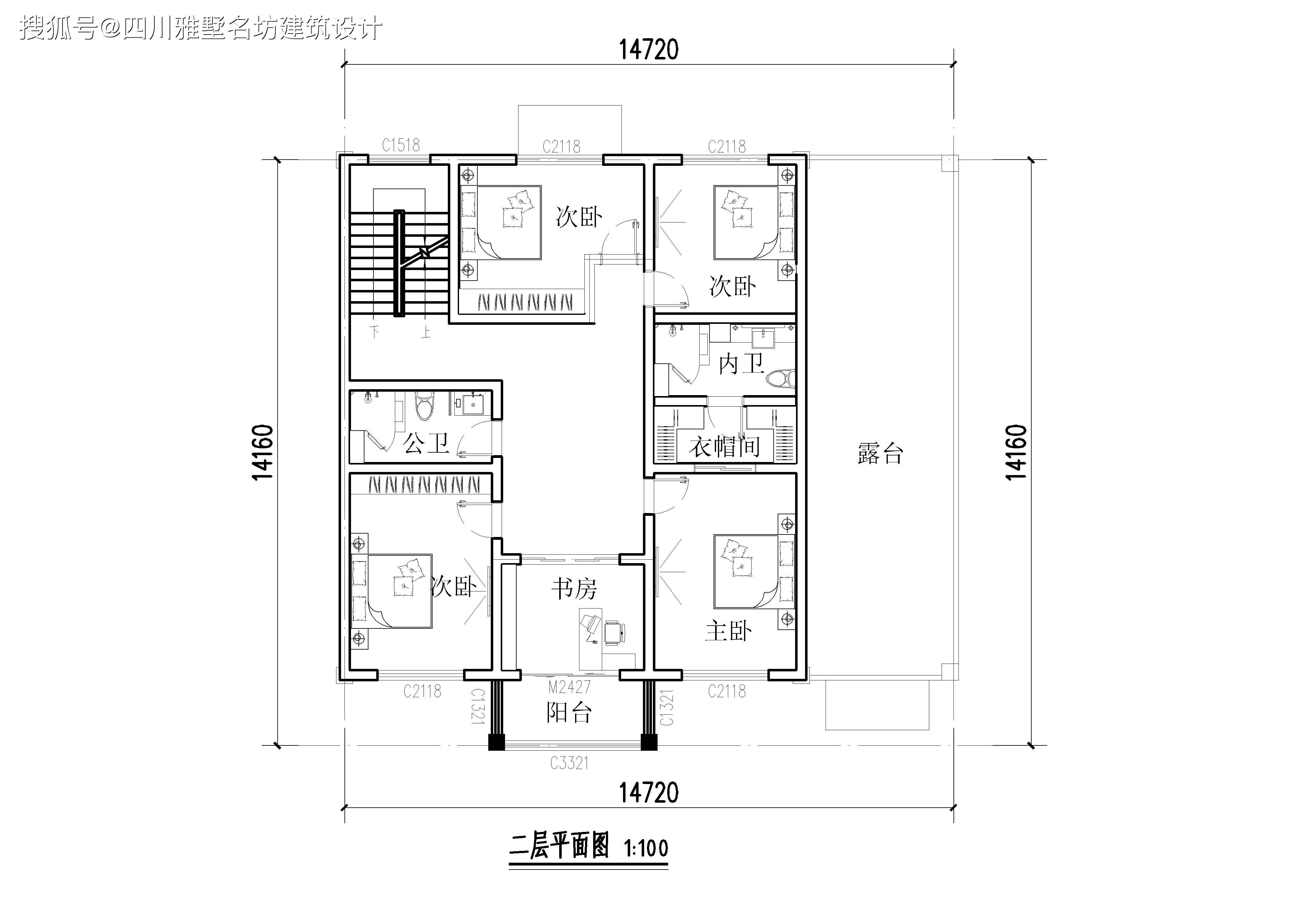
10套带电梯的农村别墅,颜值一套比一套高,老人再也不用爬楼梯了
图片尺寸1968x1969
10套带电梯的农村别墅,颜值一套比一套高,老人再也不用爬楼梯了
图片尺寸1962x1969
平面方案 ↓ 因为梁的缘故,布局设计空间利用率很低,且没有玄关.
图片尺寸2000x2016
今天介绍的这栋农村二层别墅,可以说把这么大面积的房子所能做的布局
图片尺寸4016x4525
大师您好:我现在盖一平房,房子是东西方向,大门向东,自己设计几个房屋
图片尺寸3371x2343
农村房屋设计平面图cad图
图片尺寸920x1302
docx 21页
图片尺寸2255x1594
现代风格二居室90平米房子装修效果图-远洋山水-业之峰装饰北京装修
图片尺寸2082x1927
其他92平米房子装修效果图-天润香墅湾-业之峰装饰北京分公司
图片尺寸4368x3760
二层平面图 附带施工过程
图片尺寸640x543
预算30万,你觉得能在农村建一套房子吗?为什么?
图片尺寸1402x1500
平面图剖面图分析图模型照片09 | 回环李聪雪我的方案根据长宽比近1:3
图片尺寸1080x2590
市中区自建房小别墅图纸定制设计施工,乐山乡村别墅图纸设计施工_房子
图片尺寸4200x2970
简约风格两居室65平米房子装修效果图-民安小区-业之峰装饰北京分公司
图片尺寸3280x2160
唐小英住宅五层平面图.jpg
图片尺寸991x1322
这种结构的房子存在哪些弊端?购买前一定要知道!
图片尺寸660x440
老家建房子就看这两款
图片尺寸752x665