房屋改造方案

套内85平米老房改造两套方案
图片尺寸1080x1080
方案.jpg
图片尺寸1600x1280
老旧小区改造实施方案
图片尺寸800x1132
建筑面积81平求两室改三室方案
图片尺寸1080x1204
学区房老房改造优化前后对比
图片尺寸1080x876
三房改四房,两胎家庭长辈同居如何设计?
图片尺寸1245x1080
业主选择了那一套方案布局,或者如果是您会选择那一版#成都二手房改造
图片尺寸1080x1133
户型改造设计师室内空间家装修出布局方案cad自建房屋平面效果图
图片尺寸800x800
户型改造
图片尺寸1080x1079
海珠赤岗51平老房优化方案
图片尺寸1080x1439
户型改造
图片尺寸1080x1439
两房如何改三房
图片尺寸4039x2549
户型改造
图片尺寸1080x763
户型修改 求三房改四房方案 (只要平面布局设计)
图片尺寸3000x2121
有没有比这个更好的四房方案,合理利用左侧结构板
图片尺寸1536x2048
80平方米的户型改造
图片尺寸1080x764
改户型浦东上泰花苑90平两房局部改造
图片尺寸1080x1439
老房改造
图片尺寸1080x1129
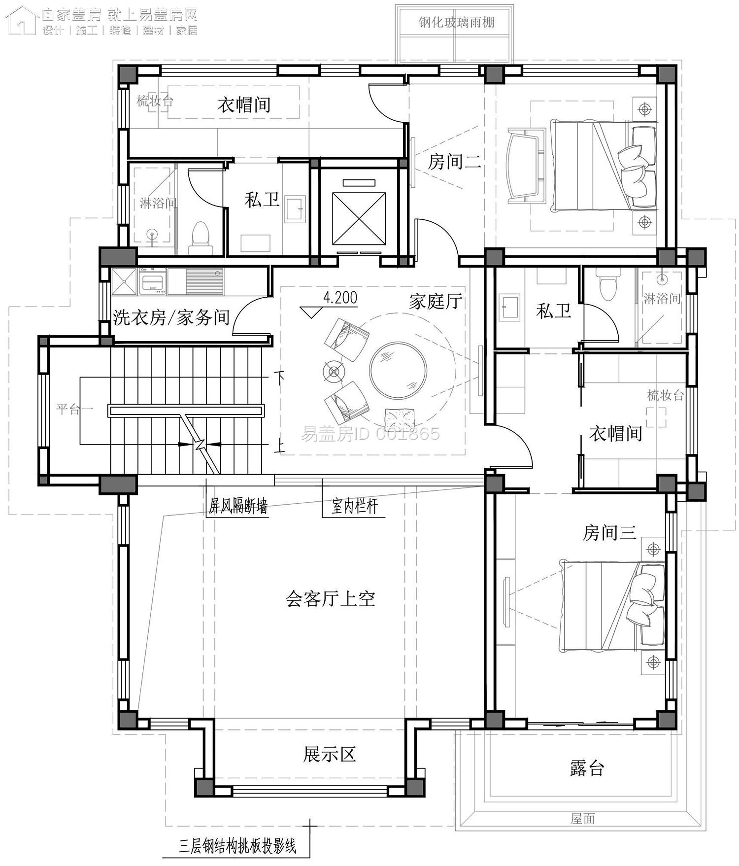
主体改造新建福建泉州139m152m新中式乡村别墅多功能改造设计怎么样
图片尺寸1500x1757
房屋改造凤原府118㎡户型改造平面图
图片尺寸1080x1142