手术室图纸设计

美容外科手术室设计分享:避坑指南
图片尺寸1080x1498
手术室改造工程部分施工图分享.有需要的欢迎大家来咨询哈!
图片尺寸1280x1706
医院手术室设计思路和感控误区
图片尺寸1080x608
国产复合手术室建设全攻略
图片尺寸944x743
手术室平面图
图片尺寸920x1191
现代医院手术中心如何精准规划与前瞻性设计?
图片尺寸983x861
dsa介入手术室装修设计建设规范布局规划设备安装与验收
图片尺寸878x555
手术室布局图
图片尺寸1080x1162
国产复合手术室设计施工
图片尺寸1242x931
现代医院手术中心如何精准规划与前瞻性设计?
图片尺寸995x950
医院高等级复合手术室建设
图片尺寸1324x1042
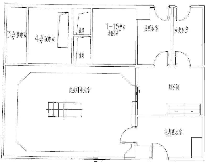
一般手术室如何设计?看北京大学国际医院皮肤科手术室
图片尺寸862x685
dsa介入手术室装修设计建设规范布局规划设备安装与验收
图片尺寸715x738
大家来找茬第三十七期手术室之建筑布局篇二
图片尺寸2339x3309
问题_手术室_图纸
图片尺寸819x727
手术室布局平面图
图片尺寸920x651
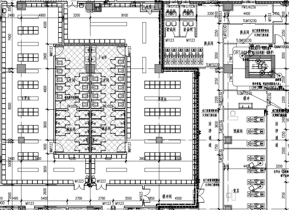
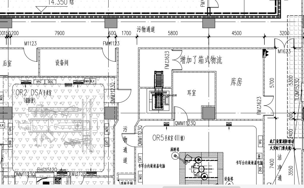
图说医建丨西安某医院洁净手术部图纸分析
图片尺寸963x700
图说医建丨西安某医院洁净手术部图纸分析
图片尺寸1044x648
牙科诊所手术室装修细节注意事项
图片尺寸2480x3508
南京医科大学第二附属医院的百级手术室建设经验
图片尺寸1080x1164