扩大前室

电梯前室是什么意思
图片尺寸500x408
前室(扩大前室)-检查门.客梯层门设置!
图片尺寸640x505
共用前室和合用前室怎么区别?
图片尺寸404x376
电梯前室
图片尺寸1599x1199
三,空间的对比和幻觉空间的利用降低洁净手术室通道空间和手术室前室
图片尺寸1000x667
扩大前室封闭楼梯间客货梯检查门加压送风口设置要求
图片尺寸1000x562
led显示屏,电梯前室广告屏和悬挂条幅等方式宣传消防安全,扩大消防
图片尺寸1080x810
扩大前室封闭楼梯间客货梯检查门加压送风口设置要求
图片尺寸1000x562
前室穿套的多种形式
图片尺寸1182x880
图5-37 扩大封闭前室
图片尺寸1080x810
"前室穿套"的前生今世-建筑防火漫谈
图片尺寸900x1004
如图红色圈着的扩大前室,门廊如何分摊,是该分到整栋还是住宅 或者
图片尺寸753x985
四,当层数不超过 4 层且未采用扩大的封闭楼梯间或防烟楼梯间前室时
图片尺寸1080x818
"前室穿套"的前生今世-建筑防火漫谈
图片尺寸1080x880
消防电梯消防电梯前室25问
图片尺寸554x551
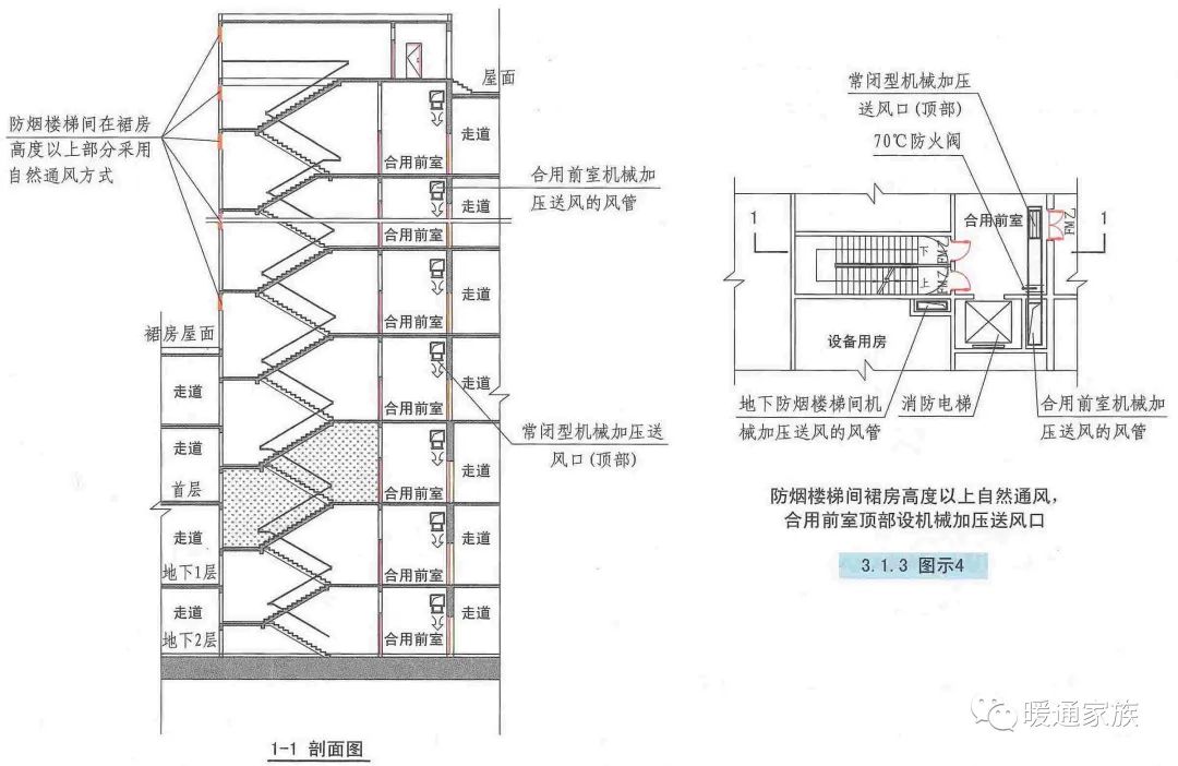
防烟楼梯间首层扩大前室的防烟系统怎么设计?有哪些规定?
图片尺寸1080x1845
从传染病防控的角度对医疗空间与设施设计的几点思考
图片尺寸640x457
防烟楼梯间首层扩大前室的防烟系统怎么设计?有哪些规定?
图片尺寸1080x702
3.设置防烟楼梯间防烟楼梯间应在入口处设置防烟前室,开敞
图片尺寸500x462
确有困难时,可在首层采用扩大的封闭楼梯间或防烟楼梯间前室
图片尺寸1080x1434