拉索节点

拉索-点式幕墙-施工工艺
图片尺寸2353x2341
一种起重机防风拉索
图片尺寸1000x703
一种超厚板异形箱型组合拉索节点及其制作方法
图片尺寸1520x1075
一种大跨度斜拉结构的铰接柱脚拉索节点
图片尺寸1744x1301
一种可调式链索结合的防风拉索
图片尺寸1669x907
双塔双索面斜拉桥斜拉索构造节点详图设计
图片尺寸560x389
隐形拉索夹胶玻璃幕墙节点
图片尺寸800x922
拉索在中间节点改变方向拉索与柔性边索的连接双向拉索的连接同向拉索
图片尺寸834x321
拉索点支式幕墙cad节点详图图纸
图片尺寸1351x852
不同方向拉索之间连接同向拉索在中间节点改变方向拉索与柔性边索的连
图片尺寸888x354
不锈钢拉索点支式玻璃幕墙节点构造
图片尺寸648x502
膜结构工程之索膜结构建筑_节点_拉索_弯矩
图片尺寸549x391
一种预应力拉索与钢框架的连接节点的制作方法
图片尺寸443x408
超大型复杂拉索节点的加工方法与流程
图片尺寸1766x1176
三亚市体育中心首次采用碳纤维拉索 - 知乎
图片尺寸805x672
拉索幕墙 1
图片尺寸640x480![[方案]某体育馆工程钢结构预应力拉索张拉施工方案](https://i.ecywang.com/upload/1/img1.baidu.com/it/u=3434737939,930052394&fm=253&fmt=auto&app=138&f=JPEG?w=504&h=409)
[方案]某体育馆工程钢结构预应力拉索张拉施工方案
图片尺寸504x409
自锚式碳纤维拉索
图片尺寸1590x1080
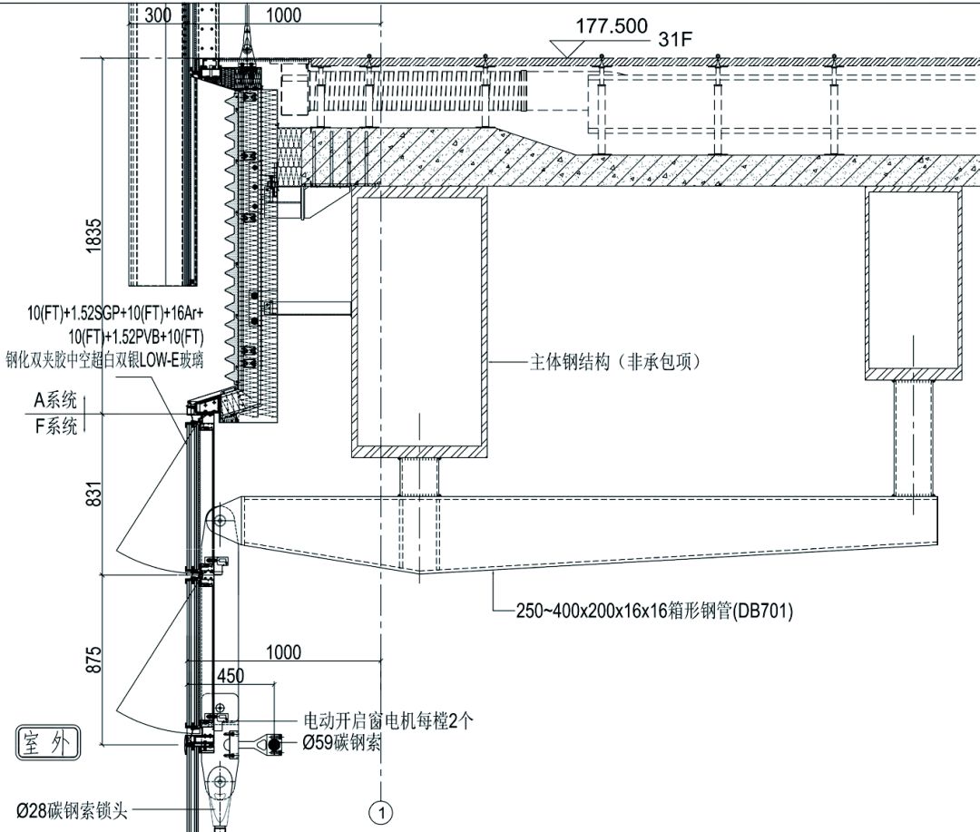
【bcw】硬核!上海国际金融中心拉索幕墙设计解析
图片尺寸1080x917
双塔双索面斜拉桥斜拉索构造节点详图
图片尺寸610x413