拦焦车结构图

一种防止粉尘污染的拦焦车的制作方法
图片尺寸1000x661
一种具有防止粉尘污染的拦焦车的制作方法
图片尺寸1000x662
焦炉拦焦车总图含左右
图片尺寸291x218
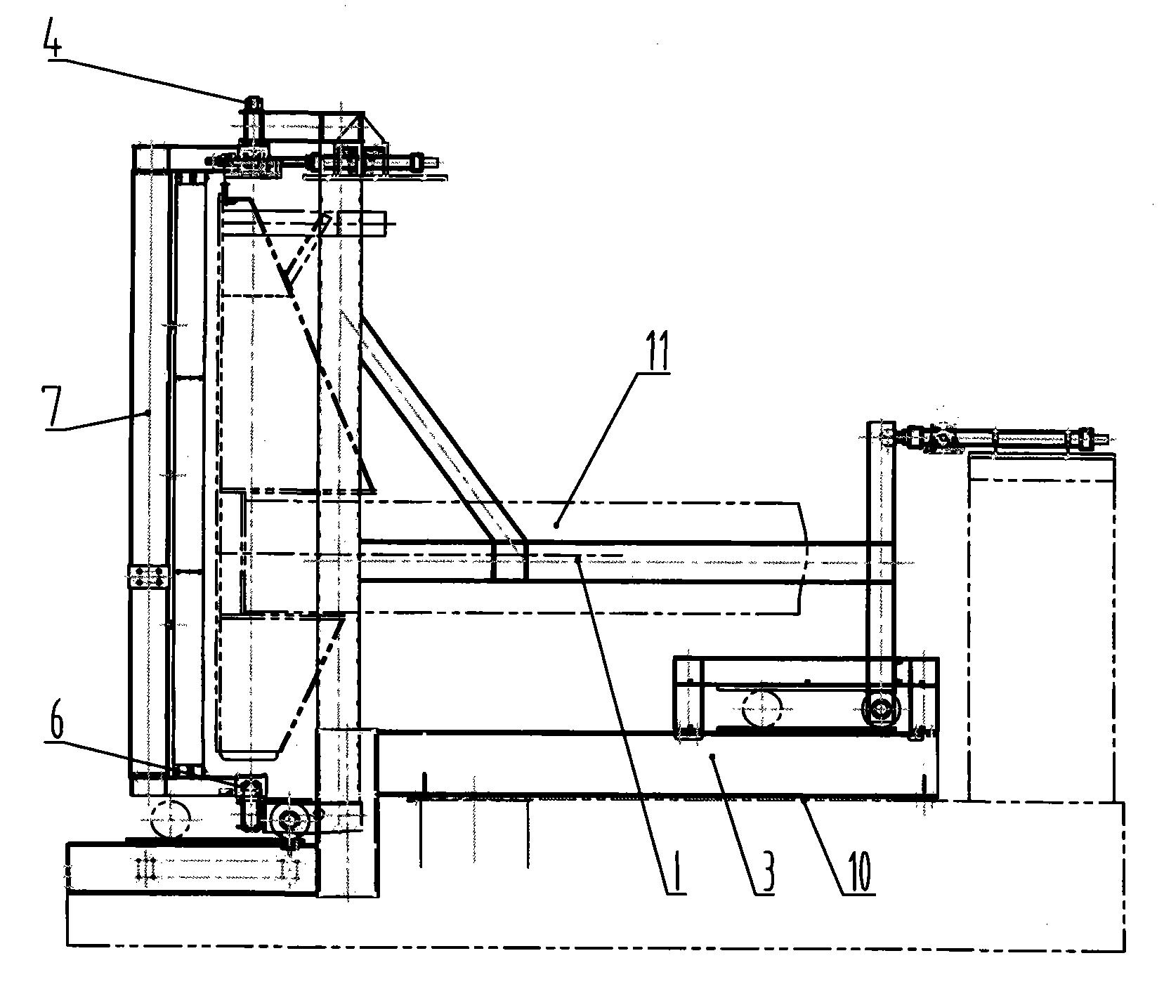
一种拦焦车导焦栅上道轨梁
图片尺寸1489x1073
6m拦焦车导焦装置的结构分析和优化设计
图片尺寸637x339
一号拦焦车液压系统图
图片尺寸700x430
拦焦机取门系统讨论资料
图片尺寸899x719
一种拦焦车导焦栅上道轨梁的制作方法
图片尺寸875x1000
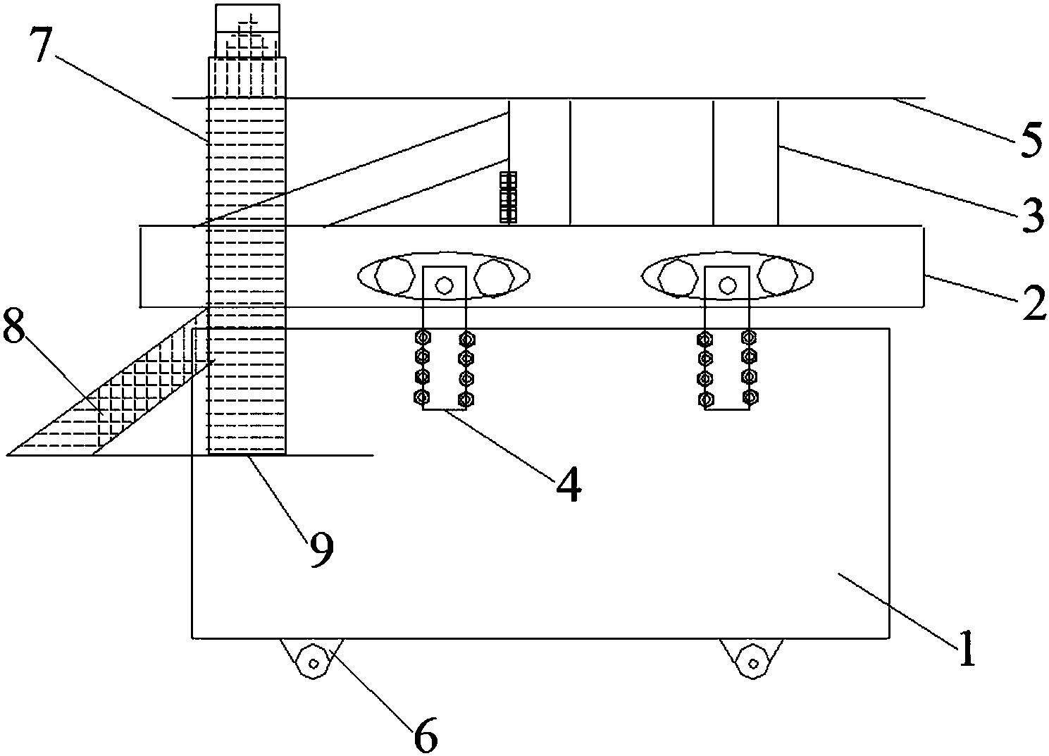
一种焦炉拦焦车导焦栅底部导向轮机构的制作方法
图片尺寸270x295
3#拦焦车除尘系统应用和改进(编号:294).doc
图片尺寸993x1404
cn201962243u_拦焦车炉前罩有效
图片尺寸800x695
一种防开裂变形的拦焦车焦盘
图片尺寸1000x465
cn207418662u_一种拦焦车炉头烟收集装置有效
图片尺寸886x723
一种用于生产焦炭的炼焦车间用净化煤气推焦车
图片尺寸1730x1436
一种焦化厂炼焦车间的拦焦车导焦栅自锁装置的制作方法
图片尺寸1000x853
焦化厂拦焦车底板的耐温隔热结构的制作方法
图片尺寸443x196
一种拦焦车液压系统的制造方法与工艺
图片尺寸1000x906
拦焦车导焦装置上导轨制造方法及图纸
图片尺寸1000x370
在熄焦车由拦焦车至提升塔的往复移动过程中,目前为避免熄焦罐上端的
图片尺寸443x290
一种焦炉推焦车的取门和清框装置-爱企查
图片尺寸1657x1411