接闪杆图纸

35米gfl2-13(2-15)钢结构接闪杆塔:雷电防护的坚实壁垒
图片尺寸1000x1427
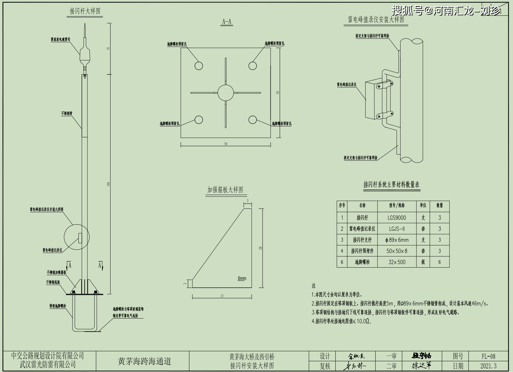
图纸没其他说明了
图片尺寸1043x787
1-2式中为接闪杆高度为接闪杆在地面上的保护半
图片尺寸1661x1204
30米避雷针钢结构接闪杆塔gfl29gfl211
图片尺寸640x906
30米避雷针钢结构接闪杆塔gfl29gfl211
图片尺寸640x906
单球形避雷针 球形接闪器 接闪杆 凯威ptu-3aw
图片尺寸1369x1371
图纸没其他说明了
图片尺寸844x522
当初为什么安装?
图片尺寸660x701
0.1 单支接闪杆的保护范围
图片尺寸866x945
10kv配电线路图集 050 zf3-12m直线耐张分支t接杆组装图
图片尺寸1311x927
一种输电线路电杆加高防雷装置-爱企查
图片尺寸1832x2416
图3.4 双支等高接闪杆的保护范围
图片尺寸606x503
25米钢管避雷针 gh避雷针 接闪杆
图片尺寸1295x1818
避雷针接闪器在建筑物屋面上的安装图_word文档在线
图片尺寸892x667
7米8米10米避雷针 图集15d501接闪杆制作图 侧墙上安装接闪杆
图片尺寸1919x1359
防雷接地方案
图片尺寸600x833
当避雷针截受雷击时,由接闪体接闪,通过雷电波形处理装置,利用外壳
图片尺寸330x456
图纸没其他说明了
图片尺寸1889x845
单杆架空避雷线保护角的示意图哪个是对的?
图片尺寸768x1024
站内的金属照明灯杆,多功能杆(又称智慧灯杆)可作为接闪杆和引下线,其
图片尺寸1080x761