放大脚基础图

分享条形基础大放脚资料下载
图片尺寸634x718
砖基础大放脚详细精制实操
图片尺寸920x1302
砖基础大放脚详细
图片尺寸420x357
大放脚基础厚度计算?
图片尺寸545x293
砖基础大放脚
图片尺寸813x856
砌基础大放脚的组砌方法有哪些 _百度教育
图片尺寸512x254
p>大放脚也叫基础大放脚,多见于砌体墙下条形基础,为了满足地基承载
图片尺寸555x351
基础放大脚的计算方法,请举例说明
图片尺寸508x436
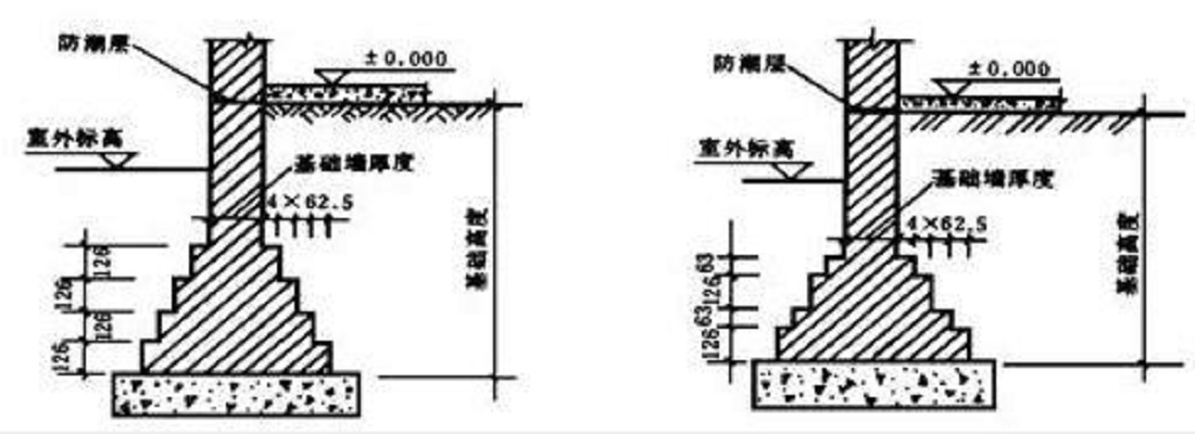
请问前辈如图中所示的不等高大放脚砖基础在gtj2021中怎么设置呢
图片尺寸630x517
砖墙放大脚n是怎么确定的如图
图片尺寸566x698
砖砌大放脚条基结构详图cad
图片尺寸760x575
墙下基础大放脚
图片尺寸722x814
求助v砖基础的大放脚的量问题
图片尺寸645x695
p>大放脚也叫基础大放脚,多见于砌体墙下条形基础,为了满足地基承载
图片尺寸385x393
这个大放脚是三层吗 然后折加高度是多少啊亲们
图片尺寸444x447![[分享]基础大放脚dwg资料下载](https://i.ecywang.com/upload/1/img2.baidu.com/it/u=2406972276,1815747724&fm=253&fmt=auto&app=138&f=JPEG?w=500&h=668)
[分享]基础大放脚dwg资料下载
图片尺寸542x724
这种大放脚砖基础该怎么定义出来
图片尺寸466x608
砖基础大放脚
图片尺寸1100x400
下面截图中的砖基础大放脚应该怎么定义
图片尺寸1018x898
基础大放脚示意图.png
图片尺寸760x567