教室墙体剖面图

z9 _普通教室立剖面_classroom__elevation___sectional_detail.jpg
图片尺寸1999x1413
美术教室精装剖面图2.
图片尺寸1229x655
每日一识丨超全45张墙面剖面图节点大样图结构狮必备
图片尺寸592x900
内容简介教室墙面及护栏详图 包括:立面,剖面
图片尺寸560x432
任务二教室剖面图测绘示范课
图片尺寸920x690
阶梯教室剖面图
图片尺寸820x438
剖面图
图片尺寸640x453
请问一下墙剖面图构件问题
图片尺寸826x810
教室剖面
图片尺寸495x394
(华富·瑞士名居项目 墙体结构剖面图)1,低碳健康的家里,硅质改性超厚
图片尺寸650x545
某墙体剖面cad施工详细大样
图片尺寸610x432
每日一识丨超全45张墙面剖面图节点大样图结构狮必备
图片尺寸732x879
每日一识丨超全45张墙面剖面图节点大样图结构狮必备
图片尺寸748x903
1-墙身剖面详图(二)
图片尺寸610x861
图书馆,阶梯教室施工图,图纸内容包括各层平面图,剖面图,东西南北立面
图片尺寸610x432
比较详细的墙壁剖面大样图(共两张)
图片尺寸858x608
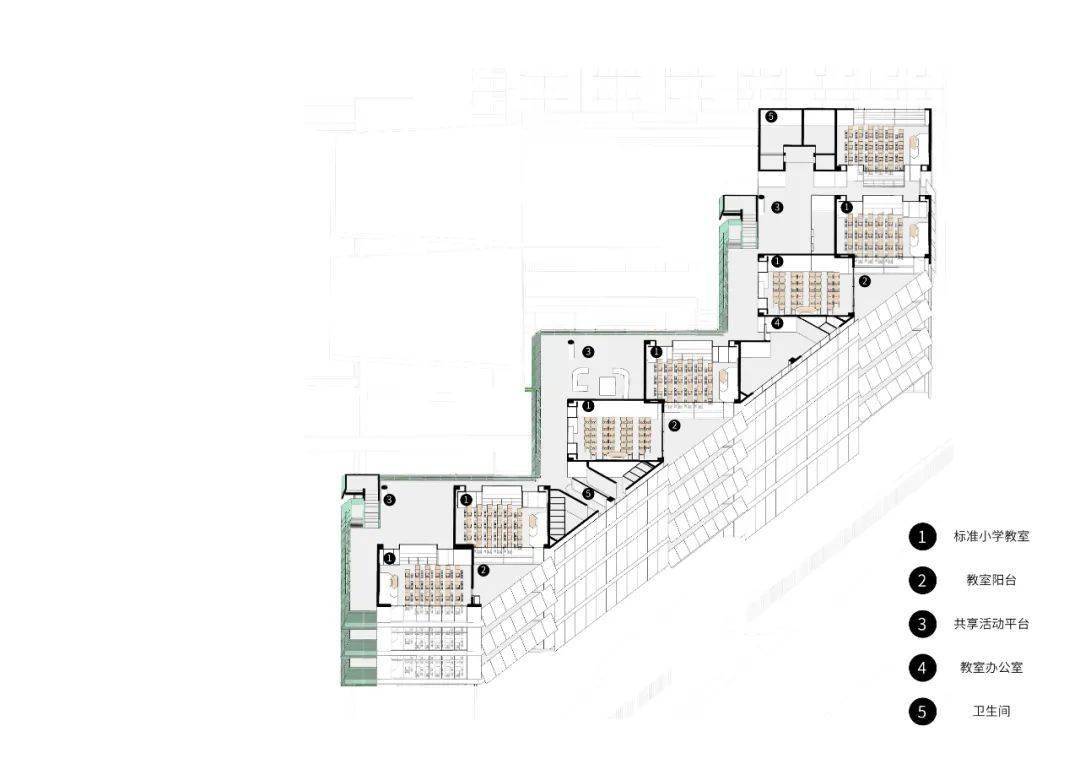
新作| 多重互联:深圳福田中学 / remix临界工作室
图片尺寸1035x555
每日一识丨超全45张墙面剖面图节点大样图结构狮必备
图片尺寸1080x744![[资料]超全45张墙面剖面图节点大样图,建筑师必备](https://i.ecywang.com/upload/1/img1.baidu.com/it/u=1915197282,2832797362&fm=253&fmt=auto&app=138&f=JPEG?w=473&h=813)
[资料]超全45张墙面剖面图节点大样图,建筑师必备
图片尺寸473x813
墨泰新作中标实施方案深圳园山街道永福路九年一贯制学校
图片尺寸1080x764