斜屋面梁图集

关于斜屋面定额套用
图片尺寸600x464
像这种坡屋面里面的梁也是斜的吗?
图片尺寸760x786
各位大神好,关于屋面斜梁的箍筋设置该如何设置
图片尺寸685x518
斜屋面的屋框梁钢筋没有弯曲
图片尺寸872x532
斜屋面
图片尺寸765x532
坡屋面,梁板折断,梁板内钢筋是否会发生变化
图片尺寸1159x473
2一道水平梁,再加屋面一道斜梁?
图片尺寸1080x2400
如图,屋面这种斜梁和斜板套什么定额?云南13定额,谢谢老师
图片尺寸885x394
斜屋面有层间梁的是双层梁吗?
图片尺寸600x425
1) 斜屋面结构梁截面形式,高度,标高取值规定斜屋面梁根据梁底标高的
图片尺寸909x551
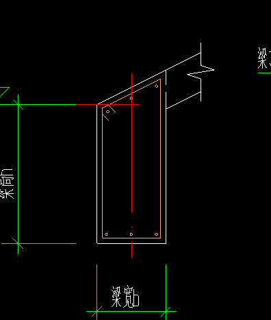
老师,如何把楼面梁斜过来?因为是坡屋面
图片尺寸396x467
坡屋面梁施工图
图片尺寸568x473
斜屋顶详图
图片尺寸560x449
钢筋长度就按照坡屋面长度和大样图尺寸算,弯钩及锚固长度按照图集
图片尺寸1552x2592
坡屋顶结构做法坡屋面梁制图规则和构造详图
图片尺寸760x570
坡屋面这里的钢筋不是楼面那里的钢筋吗怎么跟板那里的钢筋不一样呢
图片尺寸689x710
怎样将节点图,绘制到斜屋面的斜梁上呢
图片尺寸912x811
本层水平梁与坡屋面斜梁如何设置支座?
图片尺寸605x845
斜屋面的梁怎么套定额?
图片尺寸1138x844
坡屋面,梁顶是斜的钢筋怎么翻样?
图片尺寸1728x2304