新12G03

新12g03墙下扩展基础.pdf
图片尺寸1200x849![新12g03墙下扩大基础图集[精彩].doc](https://i.ecywang.com/upload/1/img0.baidu.com/it/u=3345561997,2749330855&fm=253&fmt=auto&app=138&f=JPEG?w=500&h=708)
新12g03墙下扩大基础图集[精彩].doc
图片尺寸920x1302
2024年度国家自然科学基金委员会与捷克科学院合作交流项目指南
图片尺寸628x440
象屿远香湖岸(上海象屿远香湖岸)首页网站-象屿远香湖
图片尺寸1080x599
12g03图集44页
图片尺寸1265x894
北蔡楔形绿地生态空间g01-01,g03-04等十个地块绿地新建工程项目建设
图片尺寸596x842
房天下>房产快讯>中指研究院>正文>1080_2124竖版 竖屏
图片尺寸1080x2124
再看社区,与嘉定新城其他单一住宅项目不同
图片尺寸519x295
象屿远香湖岸(上海象屿远香湖岸)首页网站-象屿远香湖
图片尺寸1080x744
c9209014过滤器滤芯c9209014油滤芯-阿里巴巴
图片尺寸1080x1920
一所初中,而初中校址位置其实就是在此次终止出让的安德门g03地块右侧
图片尺寸1080x824
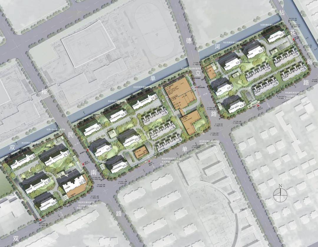
该项目位于嘉定新城售楼处电话:400-806-1558,东至拈花路,南至双单路
图片尺寸1080x582
突发杭州二手房限购解禁南京房价全新体系正在形成
图片尺寸1080x791
相应配电站,公共服务设施,社区配套用房和地下车库等,规划套数1250户
图片尺寸1080x840
适用三菱电梯凌云主板p203778b000g01/g02/g03/g04/g21/g106/12/1
图片尺寸300x300
象屿远香湖岸(上海象屿远香湖岸)首页网站-象屿远香湖
图片尺寸1080x872
1280_960
图片尺寸1280x960
全部底价成交刚刚南京火速卖出3幅地
图片尺寸961x721
这是一个注定成为嘉定新城新一代人居封面的大作!
图片尺寸1080x647
户型配比:【交通方面】:11号线嘉定新城站直线距离2.
图片尺寸904x159