施工图纸 平面图

红叶小区住宅楼建筑平面户型设计cad施工图纸,其包含的内容为总平面图
图片尺寸610x861
资料内容包括:一层平面图,二层平面图,三层平面图等,可供参考.
图片尺寸610x431
欧式别墅 二层平面图
图片尺寸820x1161
图纸包含:建筑的平面,立面,剖面,设计说明,构造装修一览表…….
图片尺寸610x432
一层空调风系统平面图图纸参数图纸id: 984412图纸格式:exb图纸版本
图片尺寸697x415
某6层住宅楼建筑设计cad施工平面图
图片尺寸449x377
为某阁楼层私人住宅建筑结构施工全套图纸,资料内容包括:底层平面图
图片尺寸610x426
宿舍公寓设计图平面图布局图施工图cad图纸学校学生宿舍楼公寓楼
图片尺寸750x750
一层平面布局图
图片尺寸820x605
资料内容包括:阁楼层平面图,一层平面图等,可供参考.
图片尺寸485x679
cad施工图,建筑cad图纸下载内容简介:图纸含有建筑外立面图,平面图
图片尺寸1528x600
多层住宅楼建筑设计平面图
图片尺寸610x432
一层平面图
图片尺寸738x690
办公楼平面建筑施工图_cad图库 -建库图纸
图片尺寸800x567
房结构施工图,本项目采用独立基础,异形柱结构,图纸包含基础平面图,各
图片尺寸610x861
资料内容包括;一层平面图,二层平面图,三层平面图等,可供参考.
图片尺寸447x641
新疆五家渠休闲风格住宅施工图住宅家装cad施工图纸下载
图片尺寸1200x848
经典高层住宅建筑cad平面设计图纸
图片尺寸610x432
社区服务中心强电系统施工图纸
图片尺寸509x715
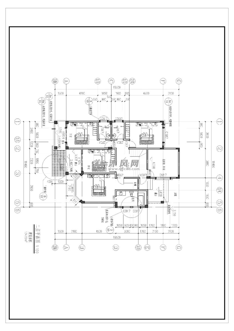
二层平面图
图片尺寸820x694