旁通阀cad图例

压差旁通阀的选型计算
图片尺寸395x396
图文┃空调系统旁通阀的工作原理
图片尺寸640x301
组装时,仅需于旁通阀本体两端内螺纹上螺锁旋接进水管及出水管.
图片尺寸750x750
压差旁通阀的必要性和特征
图片尺寸1080x596
压差旁通阀在中央空调冷水系统的调试与设定
图片尺寸680x389
06自动排气阀1安装位置水箱上方,水系统最高处2注意事项1,自动排气阀
图片尺寸718x629
当供,回水管压差相对较大时旁通阀动作,因此容易产生磨损,气蚀以及低
图片尺寸926x1174
这就是制冷系统的能量调节装置 — 热气旁通阀!_蒸发器_压缩机_压力
图片尺寸758x423
空调系统旁通阀的工作原理
图片尺寸518x548
截止,过滤,旁通一体式进水阀:供回水采用三通球阀,可分别进行主管路和
图片尺寸1280x1066
电动二通阀和电动三通阀均安装于风机盘管的出水管侧.
图片尺寸640x281
水系统配置涉及到额外附件如两通阀,压差旁通阀,水泵,如果是上水下水
图片尺寸677x482
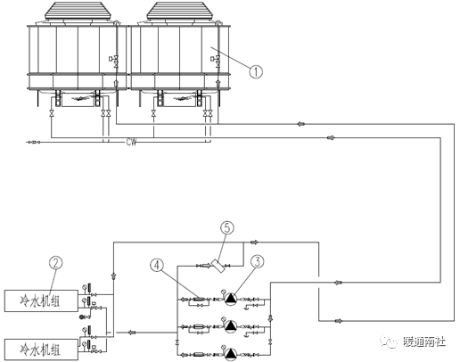
(6)末端装置(空气处理机组,风机盘管等);(7)集水器;(8)压差旁通阀组
图片尺寸516x406
第四章第24讲t-flex cad的装配设计-液压旁通阀的装配
图片尺寸448x252
数据中心必须要动态平衡阀吗
图片尺寸475x486
图解这些阀到底该如何安装
图片尺寸555x243
空调系统旁通阀的工作原理
图片尺寸566x305
中央空调压差旁通阀作用原理与选择
图片尺寸884x580
图2-1-96 罗茨真空泵装置1—壳体;2—转子;3—冷却器;4—旁通阀罗茨
图片尺寸712x450![[图解]这些阀到底该如何安装?](https://i.ecywang.com/upload/1/img1.baidu.com/it/u=170784079,2391159914&fm=253&fmt=auto&app=138&f=JPEG?w=555&h=224)
[图解]这些阀到底该如何安装?
图片尺寸555x224