旋转滑梯 平面

给宝宝画游乐场的旋转滑梯简笔画涂色彩
图片尺寸1280x720
优雅弧线背后的精密构.✨家人们,今天来给
图片尺寸1916x1356
儿童滑梯平面
图片尺寸1500x1200
旋转滑梯
图片尺寸610x428
钢结构旋转楼梯施工全流程详解
图片尺寸957x1150
好看的旋转楼梯,应该怎样去设计呢?
图片尺寸1080x1920
这是一个特殊的旋转5个直步旋转楼梯
图片尺寸1280x917
钢结构旋转楼梯施工图大揭秘 🏗️
图片尺寸1154x986
蓝色旋转滑滑梯
图片尺寸572x503
旋转楼梯尺寸及设计要点
图片尺寸1080x1410
旋转滑梯彩色插画
图片尺寸610x610
精讲了制图规范,小伙伴们记得及时复习,规范制图 #房子平面图简单画法
图片尺寸540x720
如何设计既美观又实用的旋转楼梯?
图片尺寸1080x1434
『旋转楼梯』常用尺寸图解
图片尺寸1772x2362
小白专享的旋转楼梯设计图来啦
图片尺寸1326x2560
曼龙滑滑梯秋千组合儿童乐园室内大号家用小型游乐场玩具宝宝滑梯
图片尺寸1500x1665
旋转楼梯设计🎨:详解与选材
图片尺寸1529x1050
旋转楼梯的画法与设计
图片尺寸720x900
请问大佬们钢结构旋转楼梯怎么细算工程量
图片尺寸1201x877
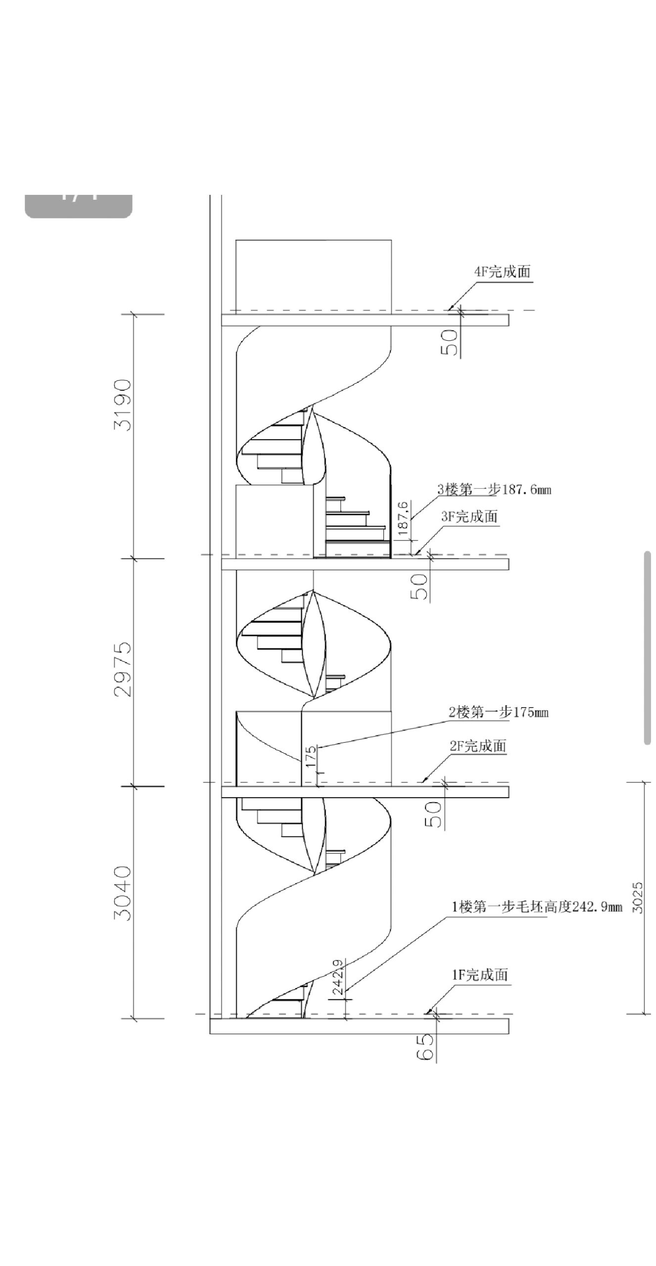
有没有想要旋转楼梯图纸的,赶紧收藏了,我已经用不上了,准备删
图片尺寸1080x2008