日式豪宅平面图

日本经济型别墅平面图
图片尺寸376x571
最受欢迎的日本经济型别墅平面图设计
图片尺寸563x380
日本的极简风住宅
图片尺寸640x471
日本经济型别墅平面图
图片尺寸474x328
日本注文住宅设计图求意见
图片尺寸1080x1439
260平日式别墅豪宅装修效果案例-260m05大平层,还原生活本色装修
图片尺寸1000x1097
最受欢迎的日本经济型别墅平面图设计
图片尺寸541x886
日本住宅的智慧都藏在这套83㎡的房子里住过就知道很舒适
图片尺寸1024x817
和风庭院685坪和风豪宅
图片尺寸1080x890
日本庭院式住宅超美
图片尺寸1080x764
琢磨日本房子半天了,5个细节让人叹服,能称得上家居界的教科书
图片尺寸1000x1000
京都御所南传统京町屋
图片尺寸960x1400
别墅豪宅500平米装修案例_效果图 - 500㎡别墅,灵山多秀色,空水共氤氲
图片尺寸660x612
平面布置图
图片尺寸640x915
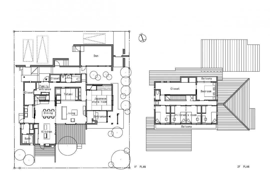
日本歌山县别墅平面图-日本歌山县别墅第22张图片
图片尺寸2000x1413
稀缺豪宅【润恒御园】独栋别墅!仅此一套
图片尺寸2000x2125
10个日本住宅的暖心设计
图片尺寸600x743
卫浴平面图标注▲马桶区单独的马桶区,安装了杀菌除臭的智能马桶和
图片尺寸1024x819
豪宅2学员作业
图片尺寸1080x727
【第八期-住宅平面优化】一个480m顶层豪宅 其余优秀作品_35.jpg
图片尺寸3000x2055