日式风格平面图

依山花园溱澜-日式风格-89㎡-装修平面效果图
图片尺寸3308x2338
日式风格
图片尺寸4707x3372
鼎峰源著115平方日式风格装修效果图
图片尺寸4962x3508
日式风格
图片尺寸1481x1000
案例掬水月在手75㎡温馨日式风享受诗意生活
图片尺寸1080x1003
写在前面 这是一套日式风格的装修案例,设计师打破传统房屋布局,改造
图片尺寸1000x935
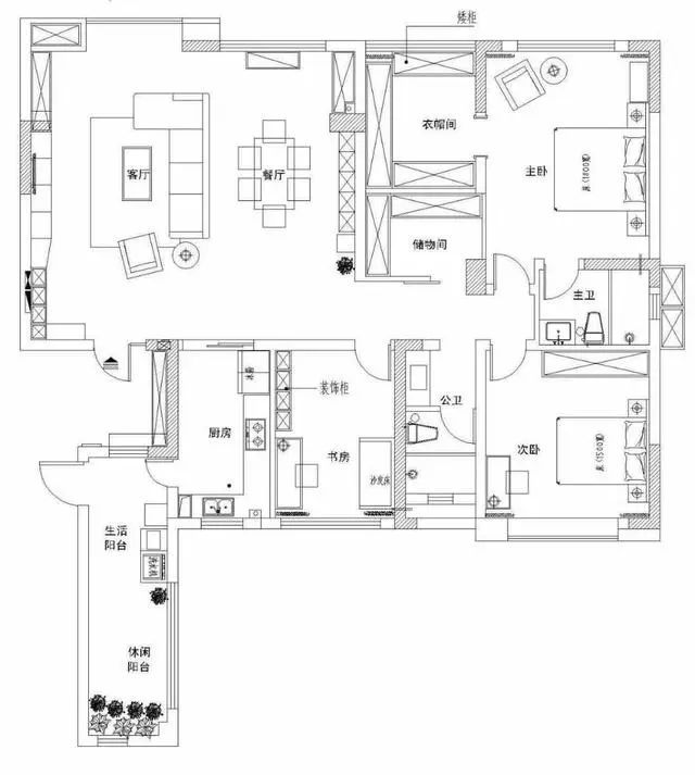
房屋面积:120㎡ 风格:日式 房型:3室
图片尺寸990x758
紫薇曲江意境 日式风格装修效果图 四室两厅一厨三卫 240平米
图片尺寸4096x3221
日式
图片尺寸1080x857
89㎡淡雅日式佐童趣北欧风
图片尺寸1000x933
127平翰林缘日式风格-平面设计图及设计说明
图片尺寸750x746
88平米日式风格两居室
图片尺寸1000x706
100平 日式风格 邻居都惊叹
图片尺寸790x809
85㎡日式风,茶室,小花房,大岛台,强收纳…既简约又有温度的家!
图片尺寸1080x1083
日式原木风太漂亮了,简约却温馨
图片尺寸640x713
日式风格的家,从来不会浪费一点空间,正是这种必须,日式的家总是干净
图片尺寸800x519
日式风格平面图装修设计效果图
图片尺寸1780x1289
日式住宅的智慧都藏在这套83㎡的房子里住过就知道很舒适
图片尺寸640x511
本期coco给大家分享的案例就是一套现代日式风格的住宅空间,业主的
图片尺寸640x915
115m2 i 日式简约风格实景
图片尺寸3252x2016