日本卖场平面图

日本特色商店集锦
图片尺寸1167x1100
由于日式项目的体量小,单层平面有限,如果做成纯购物中心模式,就会
图片尺寸1080x993
六组日本零售超市平面布局规划图赏析! - 知乎
图片尺寸640x360
六组日本零售超市平面布局规划图赏析! - 知乎
图片尺寸640x447
六组日本零售超市平面布局规划图赏析! - 知乎
图片尺寸640x388
六组日本零售超市平面布局规划图赏析! - 知乎
图片尺寸640x454
相忘江湖:日籍设计师精品超市设计案例:家的温馨_联商专栏
图片尺寸658x420
日本summitstore三田店布局陈列经营解析
图片尺寸567x376
最新日本流通资讯201707
图片尺寸813x503
想尝尝日本的果子,日本东京站大丸百货是个不错的选择
图片尺寸640x386
日本福冈卡提面包店平面图-日本福冈卡提面包店第13张图片
图片尺寸2000x1414
万象城·赤坂日本料理装修施工图 效果图
图片尺寸1541x1114
即将在金桥开业的日本籍商场lalaport我们有两个疑问
图片尺寸1062x760
日本钟表商店 / upsetter architects,平面图
图片尺寸1414x1000
50例商场平面图解读
图片尺寸640x298
日本福岛的美发沙龙平面图-日本福岛的美发沙龙第11张图片
图片尺寸2000x1413
平面图 plan-nico nico商店第10张图片
图片尺寸1280x1156
晶耀前滩日本超市apio探班报告
图片尺寸660x269
商场平面图
图片尺寸394x394
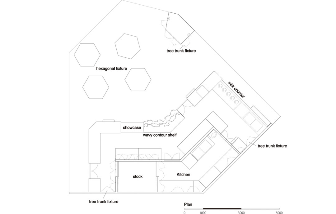
yumemarche农场食品零售店日本moriyukiochiaiarchitects
图片尺寸1080x690