景观灯施工图

探索一套包含高杆灯,庭院灯和草坪灯的景观灯具节点大样cad施工图
图片尺寸1080x1409
庭院灯景观灯太阳能路灯cad施工图纸基础做法大样详图灯具立面图
图片尺寸2550x3300
这些图例展示了各种灯具的节点施工细节,为照明设计师和工程师提供
图片尺寸1080x1409
户外景观灯具庭院灯草坪灯节点cad施工图集 17套cad图纸
图片尺寸1443x1080
户外景观灯具庭院灯草坪灯节点cad施工图集 17套cad图纸
图片尺寸1443x1080
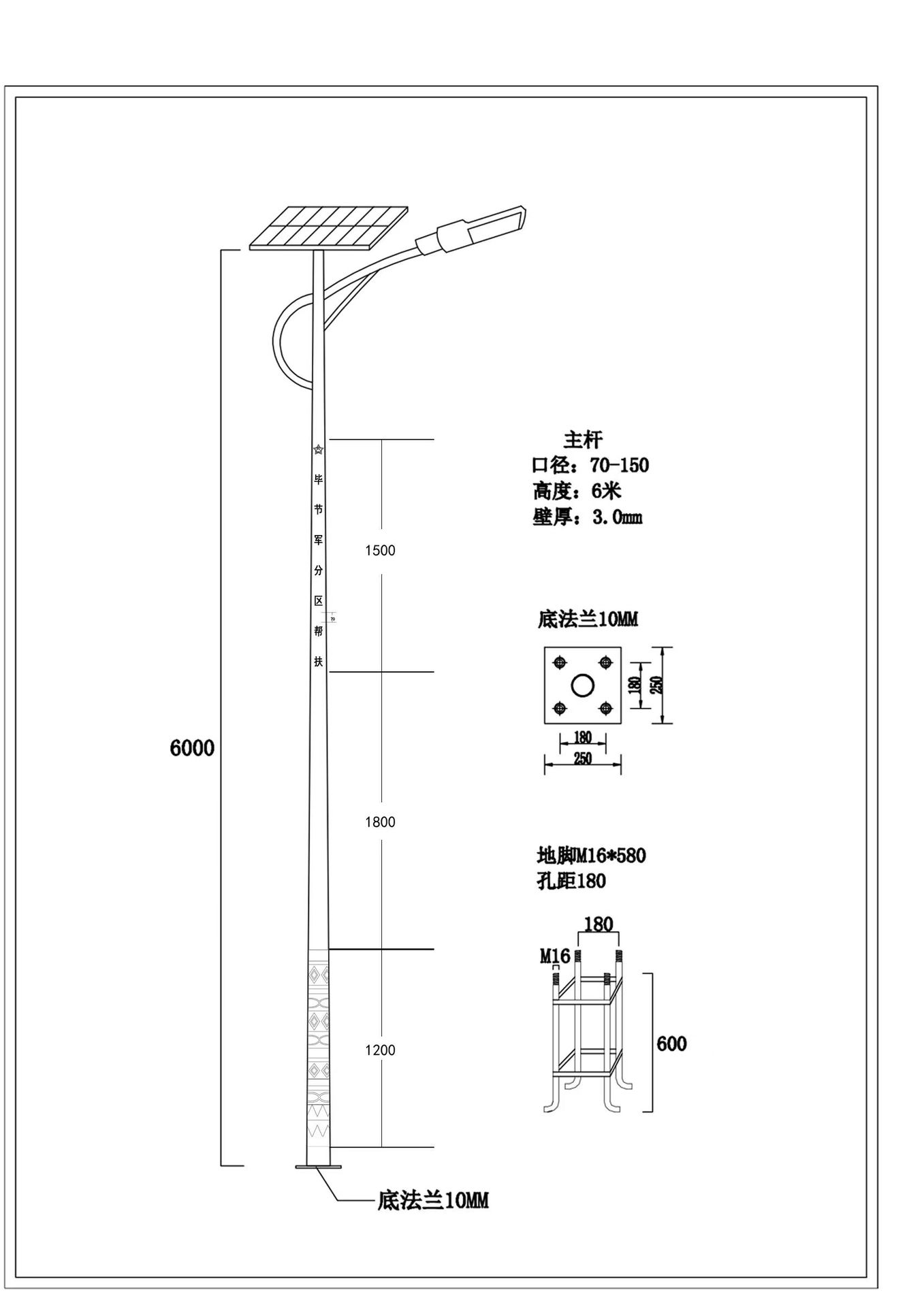
太阳能路灯安装大样图,cad格式
图片尺寸1080x654
户外景观灯具庭院灯草坪灯节点cad施工图集 17套cad图纸
图片尺寸1443x1080
新中式景观庭院灯草坪灯施工图cad图纸
图片尺寸1911x1080
图片尺寸1748x1080
有做太阳能路灯的吗,阿联酋的客户有需求,300套.#太阳能路
图片尺寸1284x1765
新中式景观草坪灯大样图cad图纸
图片尺寸1227x1080
庭院灯详图施工图
图片尺寸1600x2263
景区广场钢制八叉九火12米玉兰组合景观灯厂家 10火9米中华灯
图片尺寸750x1065
10米双杆双火高底臂路灯
图片尺寸285x399
高杆灯,草坪灯基础详图cad图纸
图片尺寸1703x1080
沈阳街灯
图片尺寸1357x1920
路灯cad图纸景观灯设计.路灯cad图纸景观灯 #路灯cad
图片尺寸864x1694
景观灯施工图
图片尺寸1600x1131
灯柱广场施工图cad图纸
图片尺寸1527x1080
两家酒店灯光搞定收工回两路#施工图
图片尺寸1080x2412