晴翠园户型

次新品质小区从未入住 单体入户小高层
图片尺寸600x600
图片尺寸1248x2442
春来晴翠园 (售楼处) 首页
图片尺寸740x1031
春来晴翠园(售楼处) 官方
图片尺寸1080x1499
英冠绿城•春来晴翠园官方售楼处
图片尺寸1080x1528
图片尺寸1080x962
春来晴翠园(售楼处) 官方
图片尺寸1080x1497
苏州吴中城南晴翠璟园晴翠璟园 4室2厅2卫 电梯房出租房源真实图片
图片尺寸600x450
苏州吴中城南晴翠璟园晴翠璟园 4室2厅1卫
图片尺寸600x450
卓越洋湖晴翠户型图(卓越洋湖晴翠链家新房)
图片尺寸2400x1804
苏州吴中城南晴翠璟园房子属于开发商全新精装 后期家
图片尺寸600x450
图片尺寸740x1016
图片尺寸740x1030
晴翠园(2026年度最新)楼盘详情
图片尺寸640x948
晴翠园楼盘百科详情
图片尺寸660x896
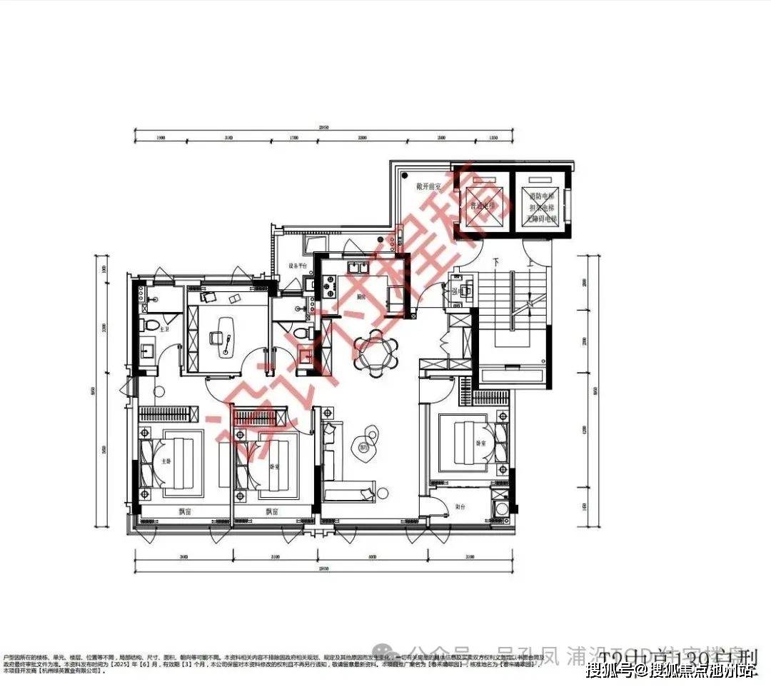
🏠晴翠府127户型设计全方案
图片尺寸1704x2133
卓越滇池晴翠建面125平米四房户型图
图片尺寸1000x1085
昆明卓越滇池晴翠楼盘详情
图片尺寸1080x1480
图建面约139户型图建面约169户型图杭州英冠绿城春来晴翠园售楼处电话
图片尺寸660x933
户型_熙悦晴翠户型图
图片尺寸906x1280