服装店cad平面图纸

服装店设计平面图:打造吸引人的购物环境
图片尺寸626x580
商场由于牵扯店铺较多,所以顶部的防水以及各楼层的防水需要格外注意
图片尺寸4029x2888
深圳·"一尚门"服装旗舰店设计 / 加减智库
图片尺寸1177x1000
分享平服装店设计资料
图片尺寸560x420
怪诞少女的衣帽间
图片尺寸650x434
玛丝菲尔服装店铺照明设计解析
图片尺寸1269x714
西装高端定制服装店轻奢风格丨su模型全套cad施工图纸
图片尺寸640x380
例如橱窗中以及中岛模特展示···将店铺的平面图画出来,调整动线不
图片尺寸960x1280
西装高端定制服装店轻奢风格丨su模型全套cad施工图纸
图片尺寸640x440
老乡鸡快餐厅cad图纸
图片尺寸1033x2217
cad如何导出高清图片格式图纸?
图片尺寸828x1792
徐家汇核心永新世纪明日开售
图片尺寸1080x1272
全屋定制高定木作产品系统化cad图纸cad图块衣柜酒柜门合集
图片尺寸1278x4010
老乡鸡快餐厅cad图纸
图片尺寸1061x2261
全屋定制高定木作产品系统化cad图纸cad图块衣柜酒柜门合集
图片尺寸1278x6182
施工图 设计风格:中式风格 图纸格式:jpg,cad2000 包含图片:效果图
图片尺寸760x544
老乡鸡快餐厅cad图纸
图片尺寸1052x1496
cad新手教程:"提取表格"和"图纸比较",5分钟教会你!
图片尺寸640x347
小厮:10大功能齐上阵,保障你的cad图纸文件安全无忧!
图片尺寸4867x3489
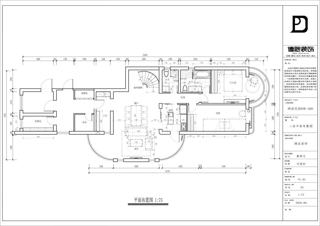
设计团队:德派装饰&君尚软装 ◆项目风格:现代极简风格 平面布置图
图片尺寸1266x895