机床基础图

机床安装基础的要求根据不同情况,机床可分别安装在混凝土地面上或
图片尺寸1108x1707
cnc加工中心 图纸都写得清清楚楚,自己编程,编错了,还怪
图片尺寸1440x1920
jr-lw1290 卧式加工中心光机
图片尺寸1654x2339
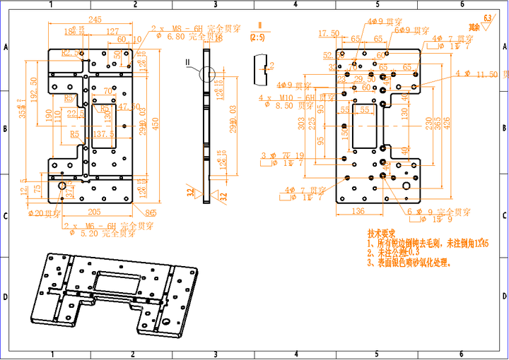
cnc编程初期练习图纸
图片尺寸720x510
这样的设备基础钢筋怎么输
图片尺寸1626x1728
jr-th6363 卧式加工中心光机
图片尺寸3307x2339
图片尺寸1200x1502
普通机床能把这张图纸做好,调机得是啥水平?#图纸 #机械图纸
图片尺寸2160x2880
数控车工初级,中级图纸大全
图片尺寸1864x2633
这样的设备基础钢筋怎么布置呀
图片尺寸860x649
加工中心练习零件图纸
图片尺寸920x1274
数控车工初级中级图纸大全
图片尺寸920x1302
new-sp15系列定梁龙门加工中心光机
图片尺寸3307x2339
图片尺寸1440x2560
设备基础绘制钢筋,如图所示,请问各位老师这种设备基础应该用什么构件
图片尺寸763x813
很多订购了设备的新客户拿到基础图后
不清楚怎么来做基础,特把
图片尺寸1152x2376
数控铣床实操训练图集共21页
图片尺寸920x1302
揭秘常见机床类型,带你轻松掌握
图片尺寸606x736
数控半桶水~提桶哥:数控车床基础练习图档#数控车床 #数控车床加工
图片尺寸777x1033
new-sp18系列定梁龙门加工中心光机
图片尺寸3307x2339