条基梁钢筋布置

殡仪馆a1~a7轴绑扎条基钢筋
图片尺寸3021x4029
业务大厅基础条基钢筋绑扎
图片尺寸4032x3024
条形基础交叉处的钢筋施工
图片尺寸500x287
斜交条形基础钢筋布置
图片尺寸721x400
18 08:57:56 707查看 湖北省钢筋算量ggj2013
图片尺寸584x540
施工现场基础承台钢筋模板照片
图片尺寸585x281
条形基础和框架梁的钢筋
图片尺寸557x474
条形基础上下均有配筋该如何布置
图片尺寸1172x696
汉冢竹园小学教学楼项目,基础条基底板钢筋绑扎完成及绑扎构造柱钢筋
图片尺寸2000x2667
条形基础梁钢筋分配
图片尺寸389x415
请问老师们条形基础梁里面有一个类似于马镫筋的钢筋怎么布置
图片尺寸644x576
答题:32924被赞:7158钢筋撑起半边天已采纳首答仅用2分56秒全部回答(3
图片尺寸473x423
请问这个条基如何配筋
图片尺寸1271x596
那基础梁底部钢筋与条基底排分布筋是否重复计算翼缘筋怎么在上面画
图片尺寸505x421
这个条基钢筋怎么定义
图片尺寸1071x579
请问下这个条形基础带卧梁怎么定义?
图片尺寸948x1690
条形基础钢筋布置问题-答疑解惑-广联达服务新干线
图片尺寸1189x695
梁宽范围不设置基础分布筋那么剪力墙宽度范围内基础分布筋是怎么设置
图片尺寸1560x2080
请问下农村小别墅,地基用的地梁混加宽1200的条形基础做,地梁钢筋为16
图片尺寸500x282
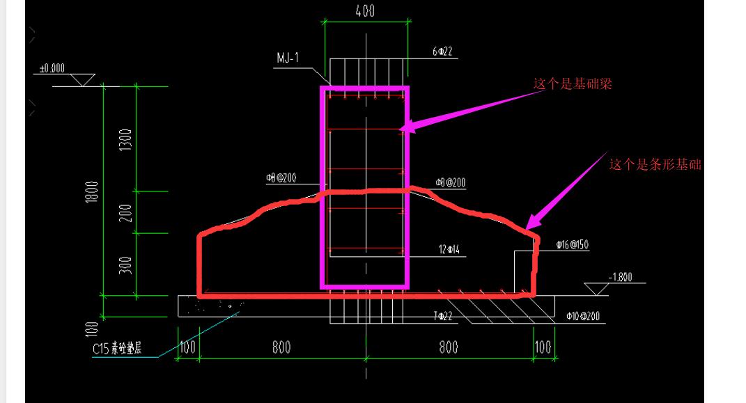
前辈新手想请教一下就是这个要怎么画啊条基加基础梁是用矩形还是参数
图片尺寸704x592