柜子安装图纸

六门衣柜怎么组装?
图片尺寸750x511
新中式衣柜鞋柜储物格橱柜
图片尺寸1600x1270
3 型号: x14125d 安装说明详情: 提供安装说明书 款式定位: 经济型
图片尺寸790x1074
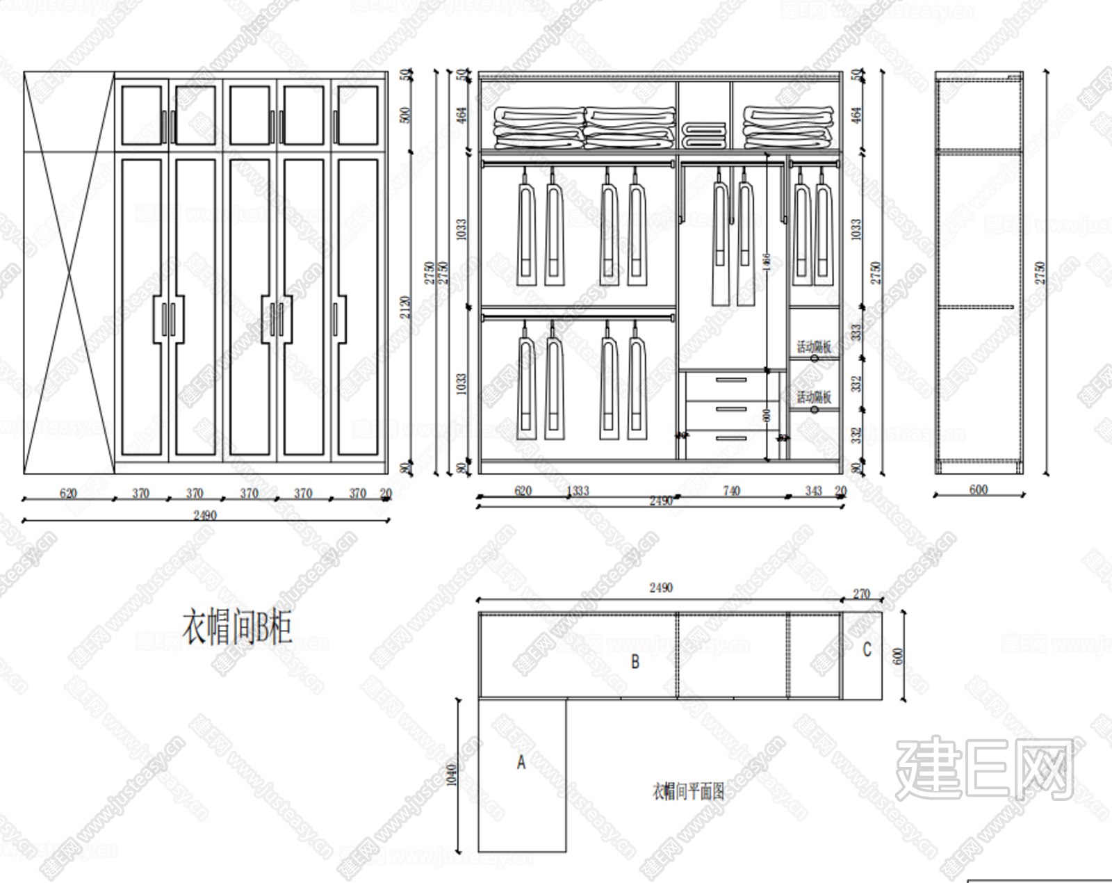
课时8平开门衣柜设计(一)
图片尺寸3064x2347
特价新款简易双人衣柜 布衣柜 加固组装大号衣柜 布衣橱
图片尺寸790x700
主卧衣柜定制设计
图片尺寸4600x3253![[酒店]客房柜节点详图](https://i.ecywang.com/upload/1/img2.baidu.com/it/u=462398278,3724781457&fm=253&fmt=auto&app=138&f=JPEG?w=500&h=400)
[酒店]客房柜节点详图
图片尺寸1600x1280
30年木工酒后吐真言:业主人傻钱多,定制衣柜这4个套一坑一个准
图片尺寸640x543
606直通三门衣柜安装详解
图片尺寸750x534
2米,高2.8米的衣柜设置图
图片尺寸1600x1280
【卧房系统】衣柜样柜一
图片尺寸1663x1059
整体衣柜设计图纸1.gif
图片尺寸1740x1338
看图学会自己动手安装衣柜
图片尺寸500x279
四门衣柜安装步骤及选择
图片尺寸600x400
定制橱柜衣柜怎样看懂设计图,如何审查柜子平面图立面图内部详图_图纸
图片尺寸834x640
五门衣柜的安装步骤
图片尺寸1194x824
两门衣柜实木质组装简约现代挂衣柜组合小户型柜子经济型卧室板式衣橱
图片尺寸790x1064
柜子门总算开始安装了.进度慢得吓人.昨天,只完成柜门摆放.
图片尺寸690x451
浴室柜安装流程浴室柜应该要如何安装
图片尺寸720x844
会生活简易衣柜简约现代经济型单人组装衣橱成人布艺柜含四个抽屉
图片尺寸512x800