柱墩基础图

柱基础
图片尺寸1359x756
柱墩防水怎么做在那个面上做
图片尺寸1543x757
矩形上柱墩钢筋布置
图片尺寸712x627
这种上柱墩怎么绘制钢筋
图片尺寸519x774
构造柱基础圆形上柱墩网状钢筋布置手动计算应该怎么算
图片尺寸1230x762
墩基
图片尺寸590x728
下柱墩钢筋标注图解,筏板基础集中标注图解-图片大观-奇异网
图片尺寸1052x760
柱墩的选择
图片尺寸1127x861
筏板柱墩的高度怎么定义
图片尺寸413x469
人防地库中下柱墩的拉钩怎么设置
图片尺寸500x758
柱墩承台基础这个柱墩是放坡的可以用承台布置但是hd的高度从哪里布置
图片尺寸685x897
请问这个独立基础可以用柱墩来画吗
图片尺寸1049x628
某建筑基础柱墩详细设计施工图
图片尺寸610x861
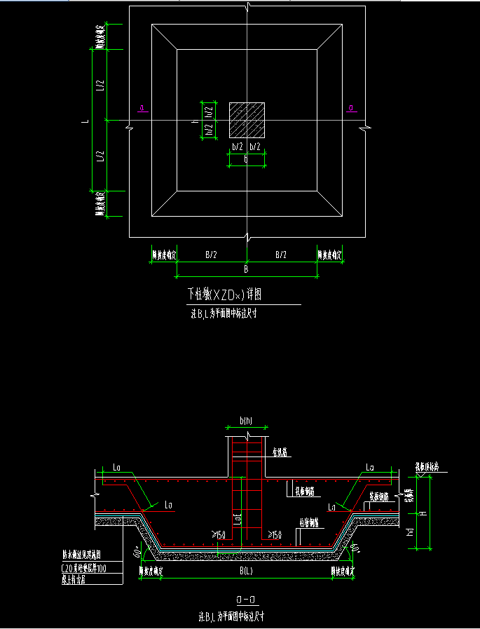
柱墩插筋及几字型钢筋设置
图片尺寸1322x877
定义柱墩
图片尺寸765x728
柱墩为什么要配8个间距200双向钢筋啊(刚开始做这种基础请高手们多指
图片尺寸708x513
我这个基础是筏板基础如图这个柱墩在定义柱墩时选择柱墩中那个类型
图片尺寸924x561
柱墩钢筋在哪里输入大样里面没有能输入其他钢筋了吗感谢
图片尺寸389x749
柱墩
图片尺寸753x612
墩基础
图片尺寸633x689