标准图集12J7_3

关于图集12j7-3
图片尺寸1041x688
关于图集12j7-3
图片尺寸1023x682
12j7 3图集3
图片尺寸1028x712
山西省_12j7-3_内装修-吊顶_地方规范图集.pdf
图片尺寸946x702
12系列建筑标准设计图集-建筑专业-12j7-3《内装修-吊顶》.pdf 93页
图片尺寸792x561
12j7-3内装修-吊顶 12系列建筑标准设计图集
图片尺寸600x422
副司在材生队但天津市建筑标准设计图集(2012版)建筑专业出版发行:4
图片尺寸2048x1484
求12j7-3-84-1 图集
图片尺寸773x566
12j7 3图集1
图片尺寸1048x707
12系列建筑标准设计图集 12j7-3 内装修-吊顶155160.
图片尺寸500x326
3,重力式
图片尺寸640x443
12j7 3图集2
图片尺寸1040x718
12系列建筑标准设计图集-建筑专业-12j7-3《内装修-吊顶》.pdf 93页
图片尺寸792x561
内蒙古12j73内装修吊顶地方规范图集pdf
图片尺寸730x517
河北12j7图集有关洗手池怎么算?是不是只算立板,台面,侧板?
图片尺寸1280x949
设计高度很重要_mm
图片尺寸640x443
铁艺栏杆图集及基础
图片尺寸896x686
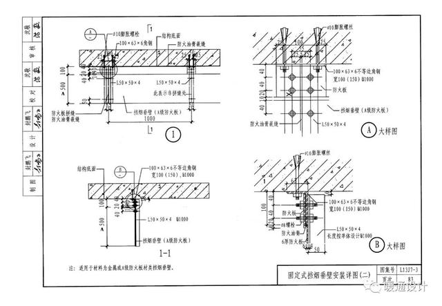
菠菜关于挡烟垂壁安装方式图集介绍
图片尺寸1063x768
菠菜关于挡烟垂壁安装方式图集介绍
图片尺寸640x425
求河北省12j73图集感谢各位老师感谢感谢
图片尺寸331x362