标高图纸

基础平面图中的标高是底标高还是顶标高
图片尺寸633x559
这个机房层标高531是结构标高还是建筑标高图纸说明是结构标高
图片尺寸828x1792
老师楼梯的标高图纸是54到000则层高是54但是结构标高层高是505补充
图片尺寸605x468
这张建筑立面图里的标高的意识是什么?
图片尺寸1280x960
图纸上标高怎么表示 图纸上标高
图片尺寸702x346
图纸当中的标高问题
图片尺寸1322x651
详图梯柱1底标高和立面图首层梯柱1底标高不同是图纸错误还是什么原因
图片尺寸1178x883
图中标高38.2是所在位置剪力墙的标高吗?
图片尺寸3456x4608
请问这个首层夹层屋面标高分别是多少
图片尺寸1605x837
基础标高问题
图片尺寸2378x1152
这段标高怎么算平面图也看不出来
图片尺寸964x818
首层结构标高为11剖面图如下请问首层的砌体墙需要伸下去11吗
图片尺寸1377x768
图纸中未给出一层底标高按照这个可以吗
图片尺寸763x714
一层里有两个标高的楼梯怎么定义和绘制在同一层的平面图中
图片尺寸670x488
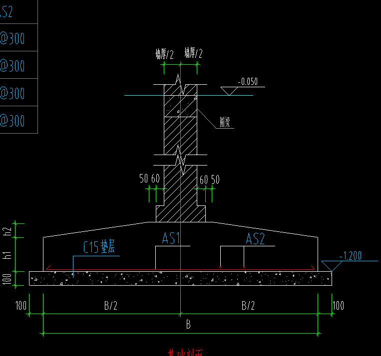
请问各位老师问题在这张图纸中如何区分基槽的标高
图片尺寸1080x1920
为何要画一张3.500标高平面图
图片尺寸1182x556
楼层高度为3米,标高-0.05到2.95,在图纸中-0.02与上一层-2.98什么意思
图片尺寸768x1024
请问一般情况下图纸上这标高是顶标高还是底标高
图片尺寸633x577
一套图纸每张右下角都有层高标高,楼层设置的时候到底该看哪个呢?
图片尺寸1022x427
网点标高
图片尺寸1019x811