核医学科平面图

深度解读|新版《核医学放射防护要求》下的某专科医院核医学科工作
图片尺寸628x390
核医学科医疗工艺流程如何设计?
图片尺寸1080x630
磁共振成像安全管理中国专家共识|放射科|手术|牙科|mri_网易订阅
图片尺寸650x601
综合性核医学工作场所平面布局示意图
图片尺寸640x461
无放射性药物治疗的核医学诊疗场所 平面布局示意图
图片尺寸561x511
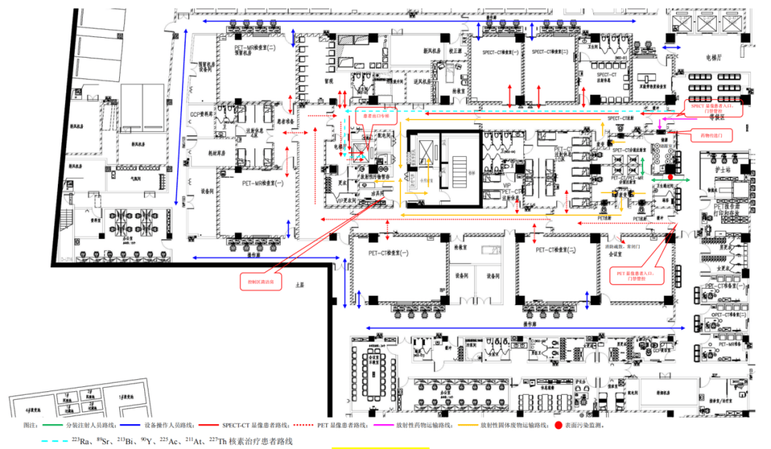
安阳市肿瘤医院核医学科位置图
图片尺寸2203x2249
ct 机房建设要点与设备质量控制检测分析
图片尺寸704x414
放射科的平面规划,要考虑4个因素:位置相对独立,和门急诊及住院部等
图片尺寸1080x763
中心放射治疗科及核医学部平面,核医学与放射治疗两部分共用一同一层
图片尺寸475x509
核医学与放射治疗科的建筑位置和布局方式,都在这里了
图片尺寸534x514
核磁共振室的平面布局图
图片尺寸366x354
放射科布局平面图
图片尺寸1190x662
图9 日本国立肿瘤中心放射治疗科及核医学部平面通过以上几个案例的
图片尺寸518x486
核医学科验收报告-清远市人民医院-公开版
图片尺寸542x737
核医学科医疗工艺流程如何设计?
图片尺寸1080x711
理想的核磁共振检查室设计图72(2)施工要点施工要点包括:1)新建医院
图片尺寸561x629
精品案例!开启医院核医学科集中式布局新时代
图片尺寸640x671
放射科辐射防护设计
图片尺寸1600x1280
门诊科室布局图
图片尺寸3040x2116
cn101401009a_核医学诊断装置以及用于此的诊断系统失效
图片尺寸2598x1934