核心筒布置

从机电出发针对典型办公建筑核心筒布局的建议思考
图片尺寸1662x786
核心筒布置方式
图片尺寸1248x1680
从机电出发针对典型办公建筑核心筒布局的建议思考
图片尺寸1584x809
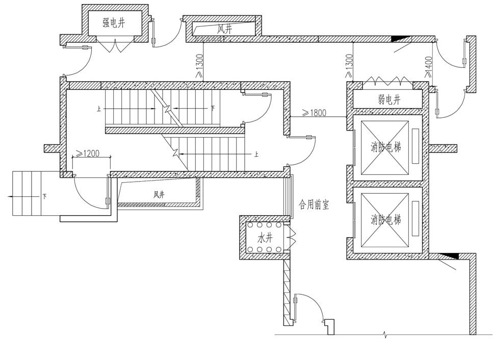
某高层建筑核心筒标准层及走廊平面图(图2-95).
图片尺寸665x520
客户从事房地产行业,建筑是核心筒公寓,项目有两层 下面一层做办公
图片尺寸1080x1439
核心筒平面布置图
图片尺寸777x613
几张标注十分详细的高层住宅楼核心筒设计
图片尺寸482x473
从机电出发探索办公建筑核心筒的布局看完很有收获
图片尺寸479x523![[分享]超高层写字楼核心筒布局技术,让甲方分分钟省下10个亿!](https://i.ecywang.com/upload/1/img1.baidu.com/it/u=3724638090,3280281994&fm=253&fmt=auto&app=138&f=JPEG?w=500&h=500)
[分享]超高层写字楼核心筒布局技术,让甲方分分钟省下10个亿!
图片尺寸720x720
246m超限超高层框架核心筒办公楼建筑结构图
图片尺寸760x608![[施工图]23层混凝土框架核心筒住宅结构施工图(筏板基础)](https://i.ecywang.com/upload/1/img1.baidu.com/it/u=1856388975,3611826948&fm=253&fmt=auto&app=138&f=JPEG?w=560&h=420)
[施工图]23层混凝土框架核心筒住宅结构施工图(筏板基础)
图片尺寸560x420
一台电梯核心筒布置形式(21m h≤33m)-楼电梯合置04
图片尺寸1654x1169
框架柱,核心筒剪力墙平面布置图
图片尺寸560x420![[国企]东莞超高层核心筒商业综合体施组](https://i.ecywang.com/upload/1/img1.baidu.com/it/u=764711258,2549598207&fm=253&fmt=auto&app=138&f=PNG?w=760&h=457)
[国企]东莞超高层核心筒商业综合体施组
图片尺寸760x457
探讨一下框架核心筒的梁布置问题
图片尺寸928x765
某型钢混凝土框架-混凝土核心筒结构的抗震性能评估
图片尺寸700x503![[分享]【弘毅|讲堂】新规后的8个住宅核心筒](https://i.ecywang.com/upload/1/img0.baidu.com/it/u=2655407279,1519425803&fm=253&fmt=auto&app=138&f=JPEG?w=639&h=500)
[分享]【弘毅|讲堂】新规后的8个住宅核心筒
图片尺寸640x501
建筑设计攻略之高层住宅楼核心筒怎么设计
图片尺寸840x746
住宅核心筒设计要点
图片尺寸967x702
超高层办公楼核心筒设计
图片尺寸920x690