核心筒详图

欧式高层宾馆酒店建筑核心筒大样图
图片尺寸566x793
新防火规范下高层户型核心筒优化设计
图片尺寸978x572
框架核心筒结构设计步骤详解图文并茂
图片尺寸760x899
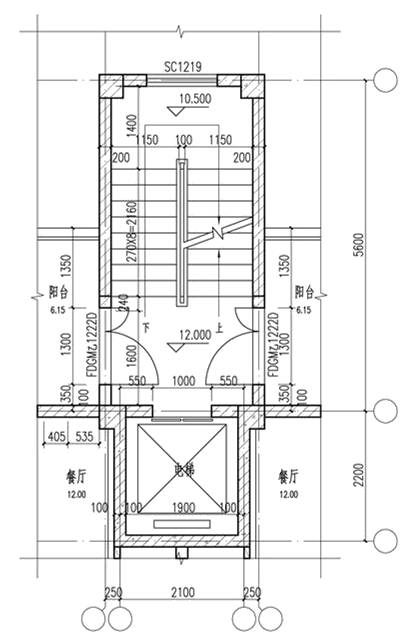
某住宅楼核心筒大样图
图片尺寸320x415
万能插头型高层建筑核心筒制造技术
图片尺寸1000x902
民防核心筒详图图片
图片尺寸961x736
34层核心筒大样图
图片尺寸560x420
核心筒布置方式
图片尺寸1248x1680
北京区域住宅核心筒设计研究
图片尺寸1200x900
核心筒剖面图
图片尺寸1640x1171
8度区b级高度框架-核心筒结构抗震设计探讨
图片尺寸640x515
几张标注十分详细的高层住宅楼核心筒设计
图片尺寸482x473
一种适用54m100m消防高度的独立入户核心筒
图片尺寸1000x758![[分享]高层住宅楼核心筒资料免费下载](https://i.ecywang.com/upload/1/img2.baidu.com/it/u=1650439391,346034679&fm=253&fmt=auto&app=138&f=JPEG?w=560&h=420)
[分享]高层住宅楼核心筒资料免费下载
图片尺寸560x420
150米框架-核心筒结构施工图
图片尺寸494x560
核心筒4(楼梯d)大样图
图片尺寸725x556
住宅核心筒设计要点
图片尺寸415x640
住宅核心筒及公共户内空间设计技术(图文)
图片尺寸728x548
核心筒详图二
图片尺寸652x522
建筑设计攻略之高层住宅楼核心筒怎么设计?
图片尺寸846x659