格栅平面图怎么画

a3-构筑物之格栅草图
图片尺寸818x579
市区某地人工格栅精品设计图纸
图片尺寸610x861
室内格栅设计看这一篇就够了
图片尺寸1080x585
污水处理工艺设备—格栅,涂山环保
图片尺寸492x265
格栅及泵房平面图.pdf 1页
图片尺寸1516x2146
nl内进流网板格栅
图片尺寸805x467
格栅工作示意图
图片尺寸597x522
格栅示意图jpg.jpg
图片尺寸674x376
市区某地人工格栅精品设计图纸
图片尺寸610x432
循环式格栅除污机栅条式粗格栅产品特点
图片尺寸699x700
格栅设计与选型
图片尺寸550x251
阶梯格栅
图片尺寸628x453
p>《给水排水用格栅除污机通用技术条件》(gb/t 37565-2019)是2020年
图片尺寸2480x3507
某污水处理厂粗格栅间,提升泵房平面图
图片尺寸560x283
下图中的铝方通格栅怎么计算面积?
图片尺寸594x852
格栅
图片尺寸404x210
cn213682436u_一种水利工程设计水渠格栅结构有效
图片尺寸1710x1105![[分享]格栅cad图资料下载](https://i.ecywang.com/upload/1/img0.baidu.com/it/u=3911229703,461236686&fm=253&fmt=auto&app=138&f=JPEG?w=665&h=500)
[分享]格栅cad图资料下载
图片尺寸760x571
无鼓粉碎格栅机,粉碎型格栅,粉碎格栅除污机
图片尺寸492x561
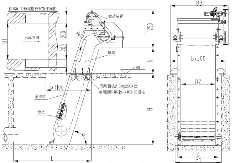
回转式齿耙格栅 回转式齿耙格栅 齿耙格栅
图片尺寸750x521