桂林雁山规划

桂林市雁山镇区控制性详细规划图 广西头条 桂林头条
图片尺寸905x1280
桂林市雁山区建成区面积
图片尺寸2160x2880
桂林市雁山教育新区分区规划
图片尺寸672x504
广西桂林市规划局网站公示了《桂林市雁山镇区控制性详细规划调整》
图片尺寸600x848
桂林市雁山教育新区分区规划
图片尺寸672x478
桂林市雁山教育新区分区规划
图片尺寸672x427
广西桂林雁山区科教园控制性详细规划设计图
图片尺寸1200x900
现代恒大桂林雁山镇2000亩项目规划方案文本
图片尺寸1600x1131
桂林雁山区这个项目总用地6400亩,建设期为2019年至2025年
图片尺寸1280x824
桂林雁山大学城
图片尺寸511x723
桂林又一所三甲医院要来,住附近的有福了!
图片尺寸690x920
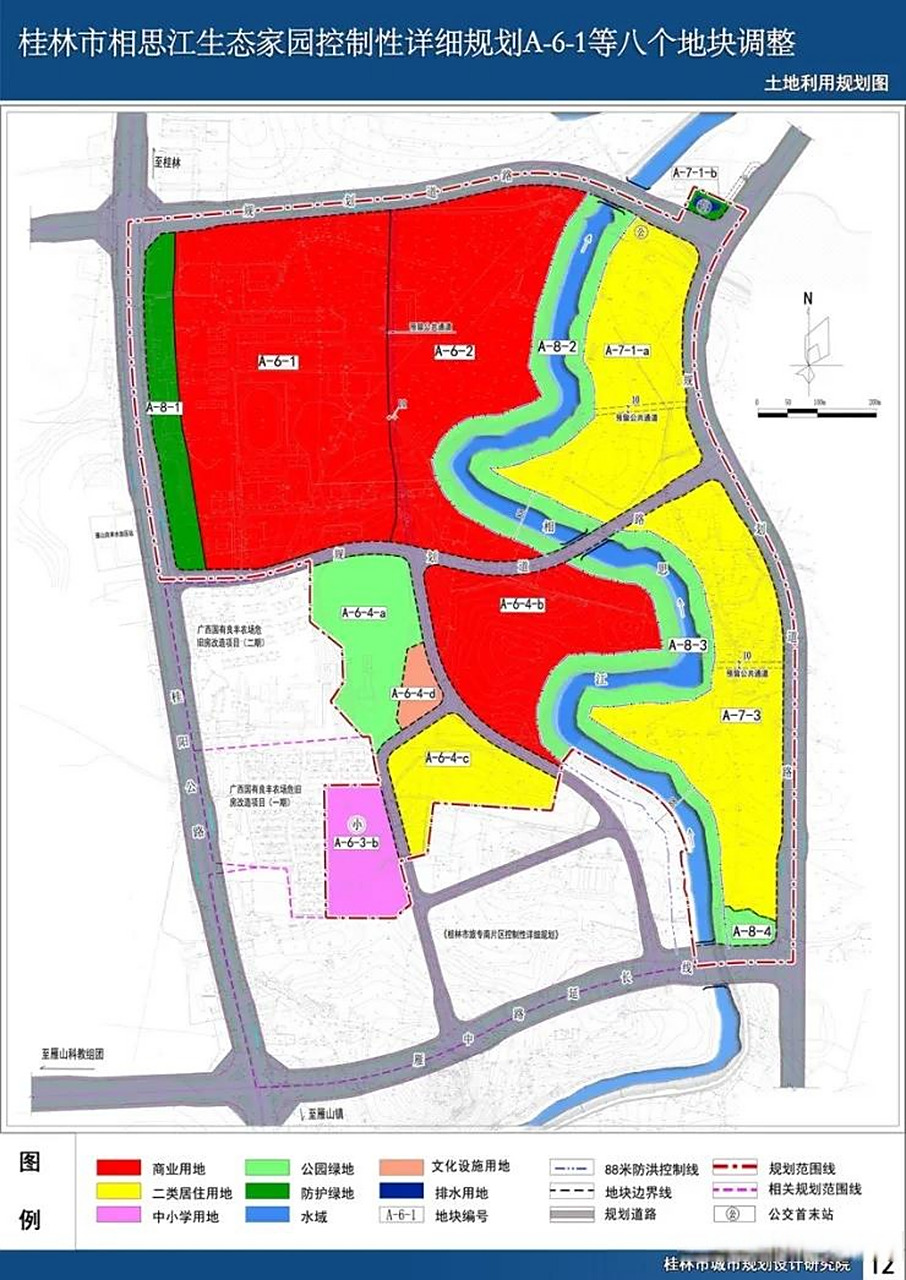
桂林5个地块规划调整,涉及琴潭组团,雁山科技园,卢笛百纺等地
图片尺寸906x1280
桂林市临桂,雁山,七星内等多个片区规划调整 广西头条 桂林头条
图片尺寸1460x1280
沉默多年的雁山要崛起?多个重大项目规划披露
图片尺寸1080x489
公交东二环枢纽站,雁山大埠公交枢纽站,万福路公交枢纽站,满足桂林
图片尺寸640x674
成功解锁桂林第149处(免费打卡点)雁山.成功解锁桂林第14
图片尺寸2518x2160
广西桂林市雁山区草坪回族乡老街提升改造项目
图片尺寸1280x946
临桂区还是雁山区呢? #房产
图片尺寸965x1280
新规划公示!雁山大学城大型三级综合医院正在路上!
图片尺寸640x480
桂林雁山融创文化旅游城的建设进展与未来展望
图片尺寸1080x780