框格梁图纸

边坡框格锚杆梁图纸
图片尺寸750x557
框格梁锚杆公路边坡防护设计施工图
图片尺寸560x420
包含c-c剖面图,地梁断面图,横梁结构图,d点立面大样图等,图纸内容完整
图片尺寸610x708![[云南]12米高边坡框格梁锚杆支护设计方案(计算书图纸齐全)](https://i.ecywang.com/upload/1/img0.baidu.com/it/u=615705017,847666531&fm=253&fmt=auto&app=138&f=JPEG?w=560&h=420)
[云南]12米高边坡框格梁锚杆支护设计方案(计算书图纸齐全)
图片尺寸560x420
市政道路路基支挡防护工程设计图-路桥工程图纸-筑龙路桥市政论坛
图片尺寸560x420
框架梁配筋图
图片尺寸560x420
分享框格梁挡土墙护坡绿化资料下载
图片尺寸666x488
qt600-3牌号中3表示的是() - 上学吧找答案
图片尺寸751x354
坝框格梁能否计算建筑面积
图片尺寸1173x446
9层框剪综合楼结构,施工全套毕业设计(计算,施组,图纸及计价)
图片尺寸881x451![[广东]高边坡框格梁防施工图(专家论证)- 结构图纸 - 沐风网](https://i.ecywang.com/upload/1/img2.baidu.com/it/u=282126487,3354667256&fm=253&fmt=auto&app=138&f=PNG?w=735&h=490)
[广东]高边坡框格梁防施工图(专家论证)- 结构图纸 - 沐风网
图片尺寸735x490
公路挖方边坡防护锚索框格梁护坡图纸
图片尺寸702x517
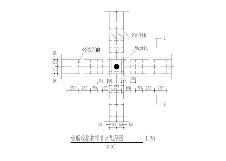
钢筋砼格构梁节点配筋图
图片尺寸760x543
框格梁锚杆公路边坡防护设计施工图
图片尺寸560x420
包含框架梁高差处节点构造详图等,图纸内容完整,表达清晰,制图严谨
图片尺寸610x861![[分享]锚杆锚索框格梁设计说明资料下载](https://i.ecywang.com/upload/1/img2.baidu.com/it/u=174631674,4185389863&fm=253&fmt=auto&app=138&f=JPEG?w=500&h=375)
[分享]锚杆锚索框格梁设计说明资料下载
图片尺寸560x420
某框架梁的节点构造详图要求
图片尺寸1129x428
框格梁锚杆公路边坡防护设计施工图
图片尺寸610x441
污泥脱水机房结构图 - 工农业建筑图纸 - 沐风网
图片尺寸820x606![[云南]12米高边坡框格梁锚杆支护设计方案(计算书图纸齐全)](https://i.ecywang.com/upload/1/img2.baidu.com/it/u=1397869727,3502710728&fm=253&fmt=auto&app=138&f=JPEG?w=560&h=420)
[云南]12米高边坡框格梁锚杆支护设计方案(计算书图纸齐全)
图片尺寸560x420