梁加腋钢筋

基础梁加腋在广联达里怎么画,四周有小包围的,还有钢筋如何设置,请
图片尺寸660x677
项目实操加腋梁板设计方法与实操
图片尺寸1080x1104
基础梁加腋钢筋绘制
图片尺寸379x379
梁下部加腋钢筋的根数问题
图片尺寸1118x542
梁加腋钢筋
图片尺寸1080x1440
梁钢筋绑扎工艺流程梁钢筋绑扎施工要点
图片尺寸695x565
加腋板
图片尺寸1131x612
求教梁加腋钢筋的长度和高度怎么确定
图片尺寸862x660
基础梁加腋钢筋的计算,我图片发上来,怎么算
图片尺寸600x342
水平加腋梁钢筋怎么计算
图片尺寸823x526
梁上,下钢筋绑扎错误
图片尺寸2000x2667
加腋梁箍筋
图片尺寸1483x704
梁的加腋钢筋是多少
图片尺寸761x496
梁(300*600)水平加腋钢筋怎样计算?
图片尺寸434x419
↓5f梁钢筋绑扎
图片尺寸600x450
高层住宅基础梁钢筋绑扎
图片尺寸640x480
l梁加腋钢筋怎么处理请求高手
图片尺寸1003x579
梁的水平加腋钢筋怎么看和怎么布置
图片尺寸865x654
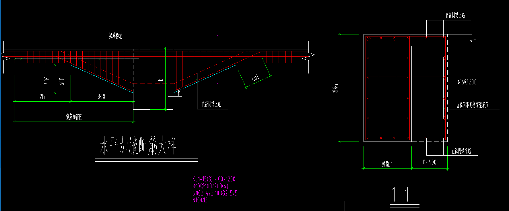
支撑梁的加腋钢筋怎么画
图片尺寸1675x794
请问这个梁加腋钢筋怎么设置
图片尺寸1774x735