楼梯梁怎么画

梯梁这个是什么意思
图片尺寸1080x1440
楼梯这两个分别是什么?梯梁和结构梁吗
图片尺寸1012x689
楼层并不属于楼梯,分在梯梁的右侧
图片尺寸640x494
整体楼梯的梁,斜梁,楼梯的连接梁分别在哪个位置
图片尺寸1500x2000
与楼梯相连的kl框架梁归为梯梁吗?
图片尺寸1105x767
三跑楼梯怎么设置计算钢筋
图片尺寸1407x1039
楼梯梁配筋图,图集
图片尺寸1014x751
各位老师,请问图示楼梯的梯梁及梯板钢筋如何处理,只能手算吗.谢谢!
图片尺寸1272x753
梯梁的认识
图片尺寸544x960
请问大家怎么区分转角三跑楼梯的梯梁tl和休息平台梁tkl?
图片尺寸1519x875
楼梯该怎么处理梯梁和平台板建构建画到图里吗负195处是平台板吗该
图片尺寸1044x1916
t型梁在单梁楼梯中运用
图片尺寸1280x1069
现浇钢筋混凝土梁式楼梯设计
图片尺寸1860x2631
楼梯休息平台墙内的梯梁算单梁体积还是并入楼梯投影面积?套什么定额?
图片尺寸975x717
楼梯起步梁
图片尺寸1534x860
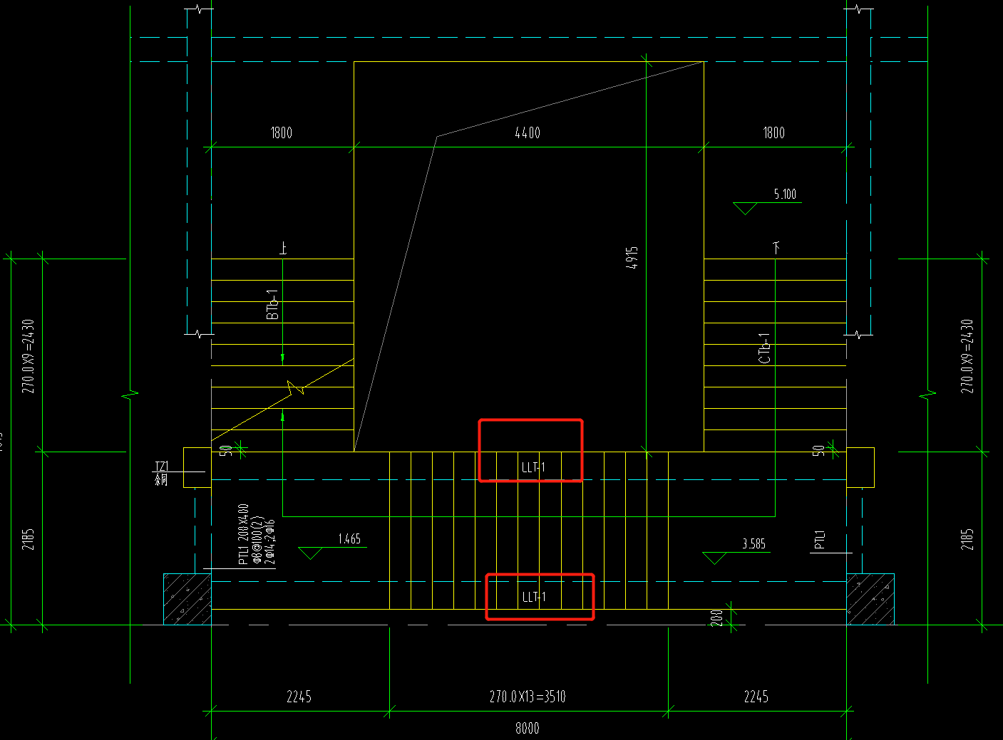
楼梯平面图上显示这两个梁都是梯梁1但是剖面图显示这两个梁尺寸不一
图片尺寸1500x2000
楼梯的梯梁怎么布置上去,楼梯直接用参数化编辑吗,感觉成品是错的,望
图片尺寸1080x2400
请问大家这个三跑转角楼梯休息平台位置是不是这4个位置都要布置梯梁?
图片尺寸870x867
楼梯两侧的梯梁如何定义计算?
图片尺寸2872x3790
请问大家怎么区分转角三跑楼梯的梯梁tl和休息平台梁tkl?
图片尺寸1154x888