模板支撑脚手架规范

高大模板支撑专项施工方案编制范本,技术交底!
图片尺寸564x563
碗扣式脚手架支撑设置示意图
图片尺寸749x610
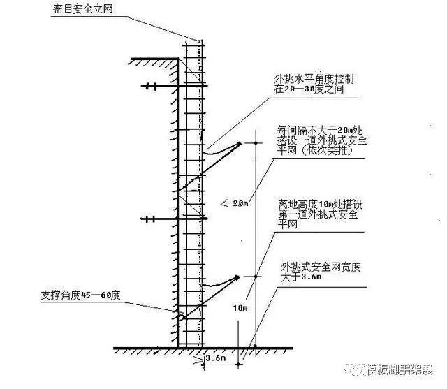
《建筑施工扣件钢管脚手架安全技术规范》jgj130-2001,《建筑施工模板
图片尺寸640x389
《建筑施工扣件钢管脚手架安全技术规范》jgj130-2001,《建筑施工模板
图片尺寸640x574
关于可调式拉杆悬挑脚手架施工工艺技术介绍
图片尺寸568x486
模板支撑脚手架搭设(施工现场脚手架及模板支撑管理要点)(35)
图片尺寸442x549
关于可调式拉杆悬挑脚手架施工工艺技术介绍
图片尺寸595x726
模板支撑脚手架搭设(施工现场脚手架及模板支撑管理要点)(20)
图片尺寸640x371
本处底部采用碗扣式脚手架支撑体系,计算参数如下: 模板支架搭设高度
图片尺寸564x554
禁止钢管焊接接长支撑体系钢木混用正确做法:模板安装应按设计与施工
图片尺寸389x352
模板支撑脚手架搭设要求
图片尺寸640x366
三维立体图施工现场基坑脚手架模板等七大项土建类安全专项知识培训
图片尺寸960x720
现浇梁支架60型盘扣式脚手架搭设计算书
图片尺寸621x485
盘扣式脚手架有何优点?这篇告诉你!_横杆_钢管_传统
图片尺寸900x884
盘扣式模板支撑自推动全市所有的房屋市政工程使用盘扣式脚手架以来
图片尺寸640x643
盘扣式脚手架模板支撑架搭设构造
图片尺寸640x427
卸料平台搭设是否符合设计要求;卸料平台支撑系统是否与脚手架连接
图片尺寸521x245
施工现场脚手架及模板支撑管理要点
图片尺寸640x557
剪刀撑要求,满堂脚手架要求,碗扣式支撑架要求,碗扣式脚手架,脚手架
图片尺寸452x323
住建局3月15日起开展脚手架工程专项整治附脚手架工程隐患识别图集
图片尺寸1080x764