横桥周期

骨骼肌,心肌和平滑肌细胞生理 横桥周期: 横桥周期: 结 合 解 离 摆
图片尺寸1080x810
肌丝滑行横桥理论
图片尺寸1080x1528
蛋白与钙离子结合变构后,原肌球蛋白移位,使肌动蛋白露出横桥结合位点
图片尺寸536x496
骨骼肌中暗带颜色最深的区域,是细肌丝与粗肌丝横桥的重叠吗? - 知乎
图片尺寸1536x2048
横桥
图片尺寸268x169
计算该箱形梁桥汽车车道荷载时,应按横桥向偏载考虑.
图片尺寸384x253
肌丝滑行的过程——横桥周期(cross-bridge cycling)3.
图片尺寸728x396
医学生医学笔记分享
图片尺寸676x585
肌肉收缩产生张力的大小取决于同时活化的横桥数目,而收缩速度则取决
图片尺寸800x757
生理学专题1细胞的基本功能
图片尺寸554x400
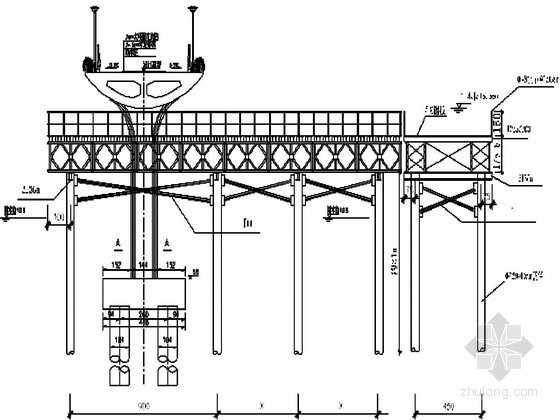
钢平台横桥向结构图
图片尺寸560x420
重磅横桥夺海珠三角跨海大桥又多一条下篇
图片尺寸1080x787
越来越有趣的生理
图片尺寸960x1280
肌肉收缩的形式与力学特征
图片尺寸378x373
ca2 通过和肌钙蛋白的结合,诱发横桥和肌纤蛋白之间的相互作用
图片尺寸550x216
活化横桥的数目,决定了整个肌肉力量的大小.
图片尺寸1118x848
徒步横桥渭河边
图片尺寸1200x900
绿城之江1号(西区),横桥路,近博美路-杭州绿城之江1号(西区)二手房
图片尺寸800x600
32m现浇梁贝雷支架横桥向布置图
图片尺寸600x450
螺旋链与评估运动中的身体评估指南
图片尺寸474x355