歌剧院平面图

上音歌剧院建筑与音乐的对话徐风尹澎时代建筑2020年第1期
图片尺寸979x505
▼观众厅首层平面图▼观众厅二层平面图▼观众厅三层平面图▼观众厅四
图片尺寸3000x3186
平面图新港表演艺术剧院位于菲律宾纽波特市,是著名的马尼拉云顶世界
图片尺寸1430x901
▼观众厅三层平面图▼观众厅四层平面图▼观众厅剖面图▼观众厅剖面图
图片尺寸1000x1062
上音歌剧院建筑与音乐的对话徐风尹澎时代建筑2020年第1期
图片尺寸961x493
(小杜鹃梦想剧场平面图↑)(小杜鹃梦想剧场舞台尺寸图↑)剧场参数剧场
图片尺寸548x500
索菲亚王后艺术歌剧院
图片尺寸1054x2034
noahh完成荷兰一新剧院设计,新老结合创造社交空间
图片尺寸4752x2200
奥斯陆歌剧院
图片尺寸1593x987
滇之冠云南大剧院
图片尺寸1200x956
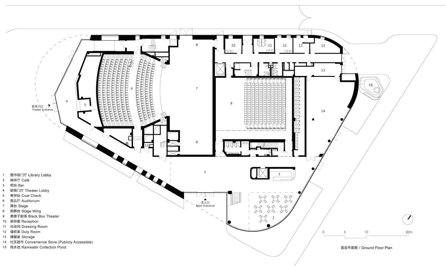
平和图书剧场,上海 / open建筑事务所
图片尺寸1484x886
济南剧院
图片尺寸1000x581
一层平面图项目概况项目名称|郑州大剧院建设地点|河南省郑州市郑
图片尺寸1008x744
海口市人民剧场及配套项目丨上海建筑设计研究院有限公司
图片尺寸1000x671
上音歌剧院上海christiandeportzamparc
图片尺寸470x947
法国theodore gouvy剧场
图片尺寸1000x991
平面图剖面图剖面图立面图立面图项目信息项目名称: 顺德大歌剧院
图片尺寸1080x1378
海口市人民剧场及配套项目丨上海建筑设计研究院有限公司
图片尺寸1000x671
剧院音响
图片尺寸696x597
平面图01 plan 01-釜山歌剧院设计方案第9张图片
图片尺寸800x512