武汉客厅平面图

邂逅小时光—武汉木羽设计
图片尺寸1600x1537
武汉客厅户型图(链家网)
图片尺寸1005x1019
武汉山水人家装饰115平两居 客厅分子灯设计超有feel
图片尺寸1200x989
武汉楚世家行吟水榭 流动的光线 赋予生活诗意
图片尺寸1280x1122
武汉客厅
图片尺寸4480x2520![武汉客厅总体规划设计方案文本[原创]](https://i.ecywang.com/upload/1/img0.baidu.com/it/u=3919823848,2689301801&fm=253&fmt=auto&app=138&f=JPEG?w=682&h=500)
武汉客厅总体规划设计方案文本[原创]
图片尺寸700x513
原创武汉的刘畊宏女孩们这些横厅户型让你轻松实现跳操自由
图片尺寸1080x886
武汉光谷之星装修185平米现代极简轻奢风格效果图
图片尺寸500x354
武汉瑞府售楼中心24小时电话武汉瑞府售楼处地址楼盘详情
图片尺寸1080x440
武汉第二个楚河汉街 阳逻万达广场 精装 双地铁口 质量有保障
图片尺寸800x600
武汉香港置地元庐
图片尺寸678x809
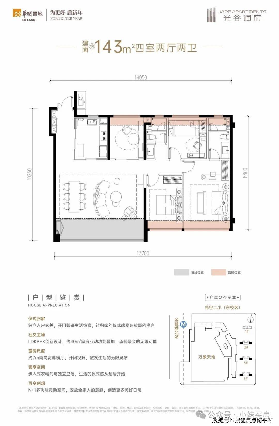
武汉华润置地光谷润府销售中心发布
图片尺寸1080x1646
武汉客厅卓尔四季公寓
图片尺寸500x526
武汉_武汉客厅卓尔四季公寓_2016-12-16-2127
图片尺寸800x800
武汉能建长江华府售楼处电话〢楼盘详情〢区域配套〢户型解析〢24小时
图片尺寸797x904
武汉绿城留香园售楼处电话售楼处地址绿城留香园售楼中心24小时电话
图片尺寸896x632
武汉华润光谷中央公园售楼处电话首页网站售楼中心24小时电话解析
图片尺寸740x1004
装修讨论 - 得意生活-武汉生活消费社区
图片尺寸1000x688
武汉城建幸福时代大家售楼处电话楼盘详情价格营销中心地址24小时电话
图片尺寸1080x1072
武汉城投联投江南岸售楼处电话4001001299转7000官方24小时售楼中心
图片尺寸850x1410