民宿户型设计

室内设计 民宿设计方案
图片尺寸1920x1980
评分超高的民宿 差旅大床房.💢
图片尺寸1440x2488
高品质民宿大床房.💢
图片尺寸1440x2488
600平米民宿设计全攻略
图片尺寸1080x1410
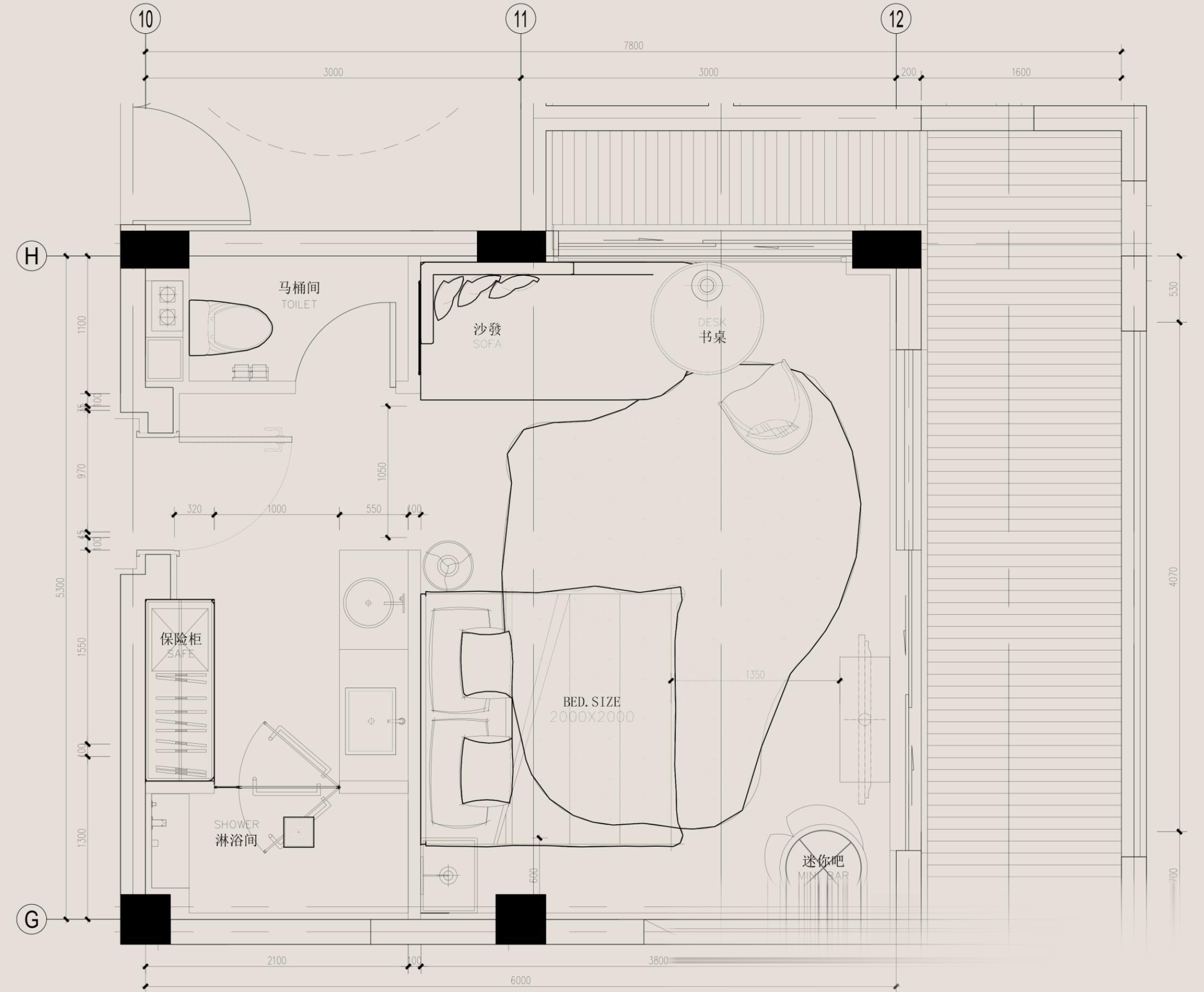
提升入住体验的精品民宿大床房设计指南
图片尺寸1618x2822
400平方三层楼民宿平面改造案例分享.平面布局方面,通过合理
图片尺寸1048x1004
设计师赵淼淼 认证徽章 粉丝 283 获赞 979 关注 1000㎡温泉民宿镜觋
图片尺寸4740x4926
💢【户型定位】民宿大
图片尺寸1440x2488
乡村自建民宿规划设计
图片尺寸2406x1698
500平方共2层民宿平面布局设计分享.大厅,中庭,客房,客户
图片尺寸1440x1920
30平米民宿设计:打造独特住宿体验
图片尺寸1167x1455
1300m²民宿空间设计平面图.🎈一层800m²
图片尺寸1440x1510
600平米民宿设计全攻略
图片尺寸1437x1048
室内平面方案 民宿空间方案设计
图片尺寸1034x1488
🏡乡村现代民宿自建房设计
图片尺寸1080x1435
820平民宿改造:两层设计全解析
图片尺寸1080x1497
琅布拉邦瑰丽酒店帐篷客房平面.#室内设计 #民宿设计 #帐篷
图片尺寸2214x2160
现代风格自建房别墅民宿设计,附带图纸
图片尺寸1080x1410
苏州吴江桃源小镇民宿项目
图片尺寸2138x1762
苏州吴江桃源小镇民宿项目
图片尺寸2579x1678