气象站布局图

自然科学 自动气象站原理ppt 自动气象站原理 观测场仪器布局图 图二
图片尺寸1080x810
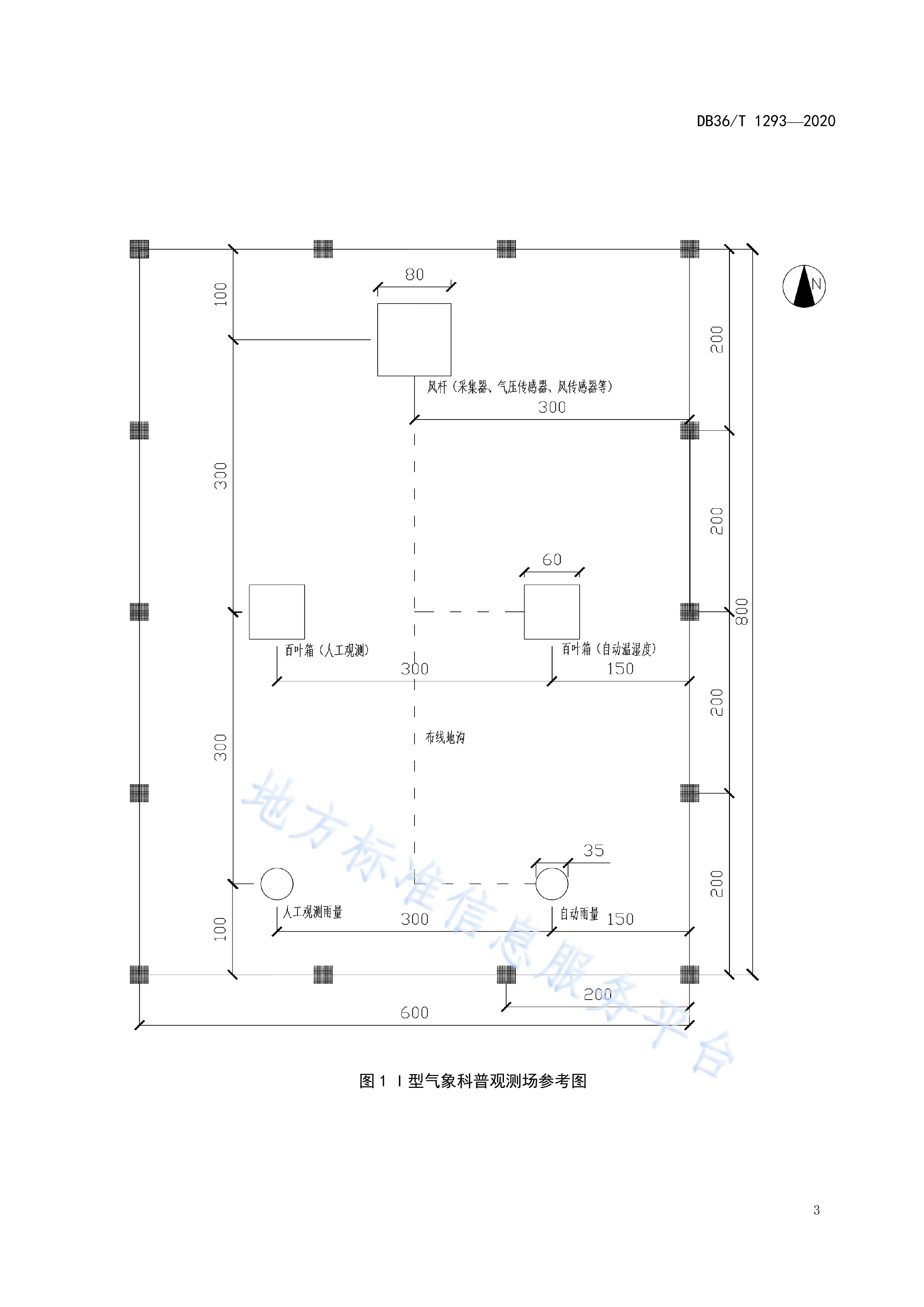
校园科普气象站建设规范
图片尺寸2481x3508
根据台站的观测任务,下面给出了几幅地面气象观测场平面布局图(25m
图片尺寸528x532
参与团队:数学之美 展开全部 地面气象观测场整体布局的平面分布图见
图片尺寸1016x1000
湘潭大汉加油加气站-平面布局图ppt
图片尺寸1080x810
中国气象站点空间分布数据
图片尺寸1062x827
液化气站平面布置图图片
图片尺寸1000x800
某气象站总平面图
图片尺寸547x402
图2 2015年全国气象监测站点分布图(审图号:gs(2016
图片尺寸1890x1441
一种可拓展式自动气象站的制作方法
图片尺寸813x1000
智能温室大棚气象观测系统 厂家直销
图片尺寸666x566
加气站平面布置图
图片尺寸1002x530
深圳市气象局开展世界气象日民心桥直播访谈
图片尺寸720x282
自动气象站维护维修技术手册 第二章 结构布局和电路工作原理 2
图片尺寸624x590
rwt_qxz_005 中小学专用气象站
图片尺寸750x1609
金湾燃气
图片尺寸810x1080
精讯畅通智慧农业农业气象站
图片尺寸753x427
一种基于arm9的可视化自动气象站制造技术
图片尺寸553x306
1998–2018年中国科学院贡嘎山高山生态系统观测试验站气象数据集
图片尺寸960x720
校园农业自动气象站扬尘监测系统小型气候仪自然灾害防御在线设备
图片尺寸742x556