水泥罐基础

水泥罐基础混凝土浇筑
图片尺寸1296x1078
k2 530水泥罐基础浇筑
图片尺寸1920x1080
隧道二队水泥罐基础施工
图片尺寸852x1136
绿意环保专业生产散装水泥罐防尘袋
图片尺寸1080x810
南崇铁路4标二分部搅拌站立120机水泥罐
图片尺寸2667x2000
晋城片装水泥罐适用的范围非常广泛以求实进取,精益求精的精神
图片尺寸738x1600
水泥搅拌桩4-2桩机水泥罐支撑不牢固,未按要求下垫钢板.
图片尺寸289x385
水稳站水泥罐基础浇筑完成
图片尺寸1080x1440
销售100t水泥仓水泥罐 立式水泥罐 30/50/60t水泥仓 原料储存罐
图片尺寸750x1046
水泥罐使用注意事项
图片尺寸450x395
厂家供应 100t水泥砂浆储料罐 立式水泥罐 水泥储存罐
图片尺寸800x1227
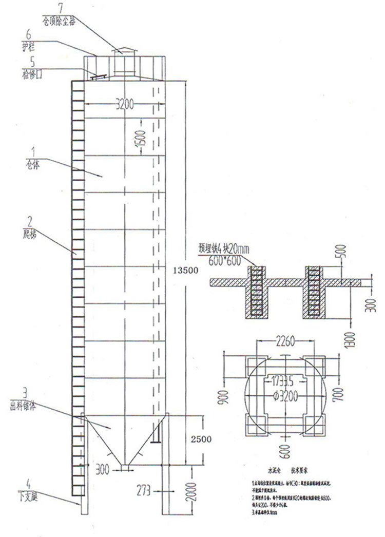
分享散装水泥罐基础施工图资料下载
图片尺寸560x387
1#水泥罐底座加固
图片尺寸2129x1200
扎实的混凝土基础能增强水泥罐抗风能力确保安全生产
图片尺寸666x888
水泥罐基础浇筑;蓄水池整理完成
图片尺寸1598x1198
3.北雨棚区域水泥砂浆罐基础砼浇筑.
图片尺寸1200x900
梧州无收缩灌浆料价格-欢迎来电咨询
图片尺寸400x333
搅拌站水泥罐基础钢筋绑扎
图片尺寸1600x1200
现货供应散装水泥罐 水泥储存罐仓 30t小型散装水泥罐图片_54
图片尺寸1000x750
3.项目南雨棚灌注桩钢筋加工区料场院内水泥浆罐基础浇筑.
图片尺寸1200x674