汀步 平面图

新中式汀步
图片尺寸350x350
10套特色汀步做法节点详图
图片尺寸1318x584
汀步平面图
图片尺寸1326x731![[分享]汀步详图资料下载](https://i.ecywang.com/upload/1/img0.baidu.com/it/u=2634389407,281284392&fm=253&fmt=auto&app=138&f=JPEG?w=451&h=529)
[分享]汀步详图资料下载
图片尺寸451x529
中式园路汀步步道su草图模型下载
图片尺寸969x600
汀步平面图-1
图片尺寸1025x694
异型板岩汀步平剖面示意图
图片尺寸610x432
庭院园路汀步
图片尺寸1024x748![[图块/节点]0.9m麻石板汀步详图](https://i.ecywang.com/upload/1/img0.baidu.com/it/u=3720250110,2155426252&fm=253&fmt=auto&app=138&f=JPEG?w=472&h=500)
[图块/节点]0.9m麻石板汀步详图
图片尺寸507x537
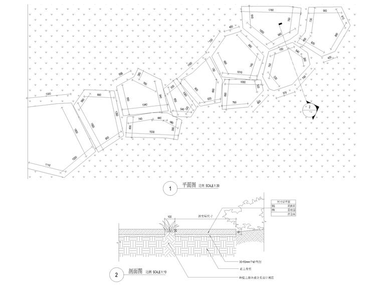
汀步平面图
图片尺寸1600x1310
自然石汀步施工图
图片尺寸481x494
10套特色汀步做法节点详图
图片尺寸610x861
资料内容包含:景观施工图(图纸目录,施工图设计说明,平面图,立面图
图片尺寸760x570
经典汀步铺装设计cad施工详图含多种类型设计
图片尺寸610x861
汀步和铺装要注意它的长度宽度的标注和文字说明
图片尺寸1697x1200
水中汀步001-003
图片尺寸548x500
汀步施工图
图片尺寸560x447
某地区的11米汀步设计图
图片尺寸610x432
园路汀步
图片尺寸1600x1310
标准汀步设计cad施工图
图片尺寸700x483