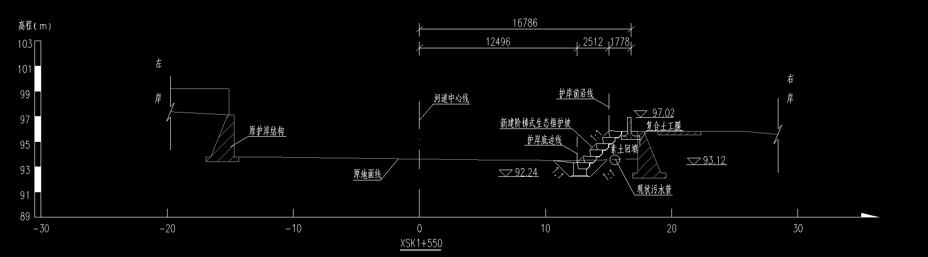
河道断面中桩

水利工程断面图中的桩号
图片尺寸1805x500
局部路基位于河塘段软基处理典型断面图(塘深>1m).png
图片尺寸760x380
水泥仿木护岸桩 河道护岸桩 防护桩 混凝土仿木护栏 水泥仿木栏杆
图片尺寸750x563
生态河道木桩护岸景观断面cad图纸
图片尺寸800x600
上海杉木桩 河道打桩 3米 河道木桩工程批发林场直发
图片尺寸800x800
内蒙古水利河道界桩厂商大量库存2021资讯
图片尺寸600x500
市政公路工程中线,纵横断面测量及曲线测设
图片尺寸760x466![[分享]公路桥梁常见的桩基施工技术](https://i.ecywang.com/upload/1/img0.baidu.com/it/u=2230627745,1725261373&fm=253&fmt=auto&app=138&f=JPEG?w=635&h=461)
[分享]公路桥梁常见的桩基施工技术
图片尺寸635x461
广西杉木桩河道防汛木桩报价
图片尺寸690x388
河道护坡桩
图片尺寸400x300
河道中已经完工的桩基础
图片尺寸1599x1199![[福建]桥梁河道临时围堰专项施工方案(钢板桩 钢筋砼涵管)](https://i.ecywang.com/upload/1/img0.baidu.com/it/u=50287130,922273771&fm=253&fmt=auto&app=138&f=JPEG?w=622&h=278)
[福建]桥梁河道临时围堰专项施工方案(钢板桩 钢筋砼涵管)
图片尺寸622x278
临近河道路面荷载下旧挡墙加固的墙桩锚组合结构及方法
图片尺寸1055x1191
河道杉木桩直径 常州杉木桩安装 胡氏木业
图片尺寸750x750
钢板桩围堰断面示意图
图片尺寸560x420
河道用杉木桩价格表
图片尺寸1080x1440
河道杉木桩公司-佳拓木业(在线咨询)-江苏河道杉木桩
图片尺寸600x488
宜昌秋来河道护坡杉木桩多少钱一米价格
图片尺寸481x572
河道采用分台生态复式不对称断面,河底宽为30
图片尺寸1522x1169
江西九江武宁修水瑞昌钢板桩报价钢板桩围堰施工南昌中元建材
图片尺寸670x502