油浴装置图

油浴锅加热
图片尺寸600x800
20l循环油浴: 为各种需加热的装置
图片尺寸1024x776
一种用于微量实验的油浴装置制造方法及图纸
图片尺寸1000x955
一种高温循环油浴装置的制作方法
图片尺寸443x329
一种全自动油浴加热装置制造方法及图纸
图片尺寸989x949
郑州长城厂家热销hwcl-3 恒温油浴锅价格低廉品质保证
图片尺寸1000x750
油浴加热
图片尺寸800x414
带计时功能的油浴锅的制作方法
图片尺寸771x1000
原料的制备金属酞菁的合成装置包括冷凝管,温度计,三颈烧瓶,油浴锅体
图片尺寸444x442
电动提升水/油浴r-1005 5l实验室真空玻璃旋转蒸发器参考
图片尺寸750x750
一种带搅拌的油浴加热控温装置制造方法及图纸
图片尺寸330x360
油浴玻璃精馏-天津帝锐科技有限公司
图片尺寸1000x1569
du-3go恒温磁力搅拌油浴锅rt 5~200℃恒温油浴锅
图片尺寸800x800
实验仪器加热装置 水浴加热 油浴加热装置 数字显示 控温
图片尺寸1920x1440
秋佐科技分子蒸馏装置实验室短程化学分离提取蒸馏植物油真空yd200b
图片尺寸790x1153
一种真空油浴脱水装置及其操控方法-爱企查
图片尺寸592x419
一种应用于液体恒温流动试验的多级油浴控温装置
图片尺寸1608x1084
然后把烧瓶上面连接一个恒压低液漏斗,再上面是冷凝管,烧瓶放在油浴锅
图片尺寸274x270
首页597. 水浴锅,水箱,水槽,油浴5976-1a数显玻璃恒温水浴槽85
图片尺寸3468x3468
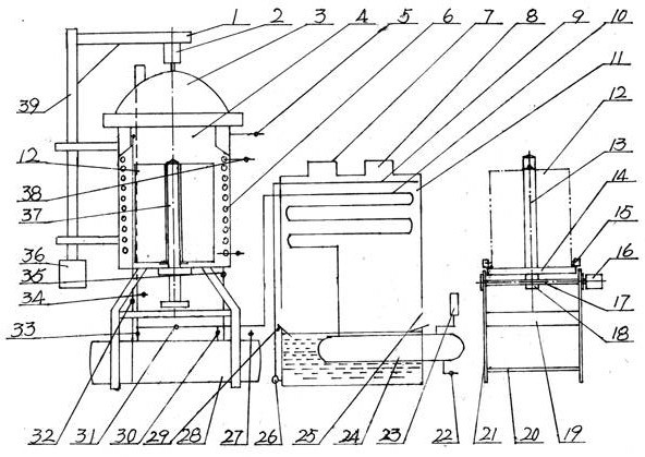
温度检测型油浴锅的制作方法
图片尺寸786x1000