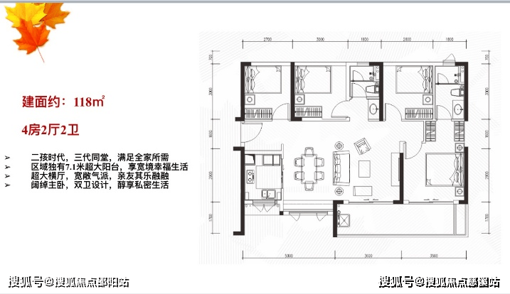
泰丰枫林岸平面图

泰丰枫林岸惠州大亚湾泰丰枫林岸楼盘信息泰丰枫林岸价格户型小区环境
图片尺寸717x414
泰丰枫林岸
图片尺寸2400x1800
泰丰枫林岸花园在售
图片尺寸900x600
泰丰枫林岸大湾区新品发售
图片尺寸3366x2477
惠州房产之泰丰枫林岸大亚湾中心5分钟即可上高速到万达灿邦
图片尺寸680x869
惠州泰丰枫林岸楼盘位置怎么样有升值空间吗
图片尺寸900x662
泰丰枫林岸花园
图片尺寸585x438
泰丰枫林岸是否精装交房泰丰枫林岸最新价格精装单合同价
图片尺寸1080x795
泰丰枫林岸
图片尺寸490x639
泰丰枫林岸地段绝佳
图片尺寸1080x753
泰丰枫林岸有什么优势的现在什么价格有折扣吗没有惠州户口能不能买
图片尺寸800x600
大亚湾泰丰枫林岸楼盘房价,卖的那么火,有什么内幕?
图片尺寸1143x652
踩盘记|泰丰枫林岸 湾区中的繁华居所
图片尺寸1280x763
泰丰枫林岸【官网】惠州大亚湾【泰丰枫林岸】官方售楼处电话,房价
图片尺寸707x403
泰丰枫林岸又一力作湾区中的繁华品质极致美宅
图片尺寸600x330
大亚湾泰丰枫林岸优势优缺点有哪些内容详细介绍
图片尺寸600x372
讲真现在可以去看惠州泰丰枫林岸的房子了性价比很高
图片尺寸600x372
泰丰枫林岸
图片尺寸800x561
惠州泰丰枫林岸为什么卖的这么好//开发商口碑怎么样?
图片尺寸1490x1080
惠州泰丰枫林岸售楼处电话400-022-8887转7777-24小时售楼中心-楼盘
图片尺寸1030x648