泳池施工大样施工图

文档下载 所有分类 > 某室内游泳池剖面详图(word内
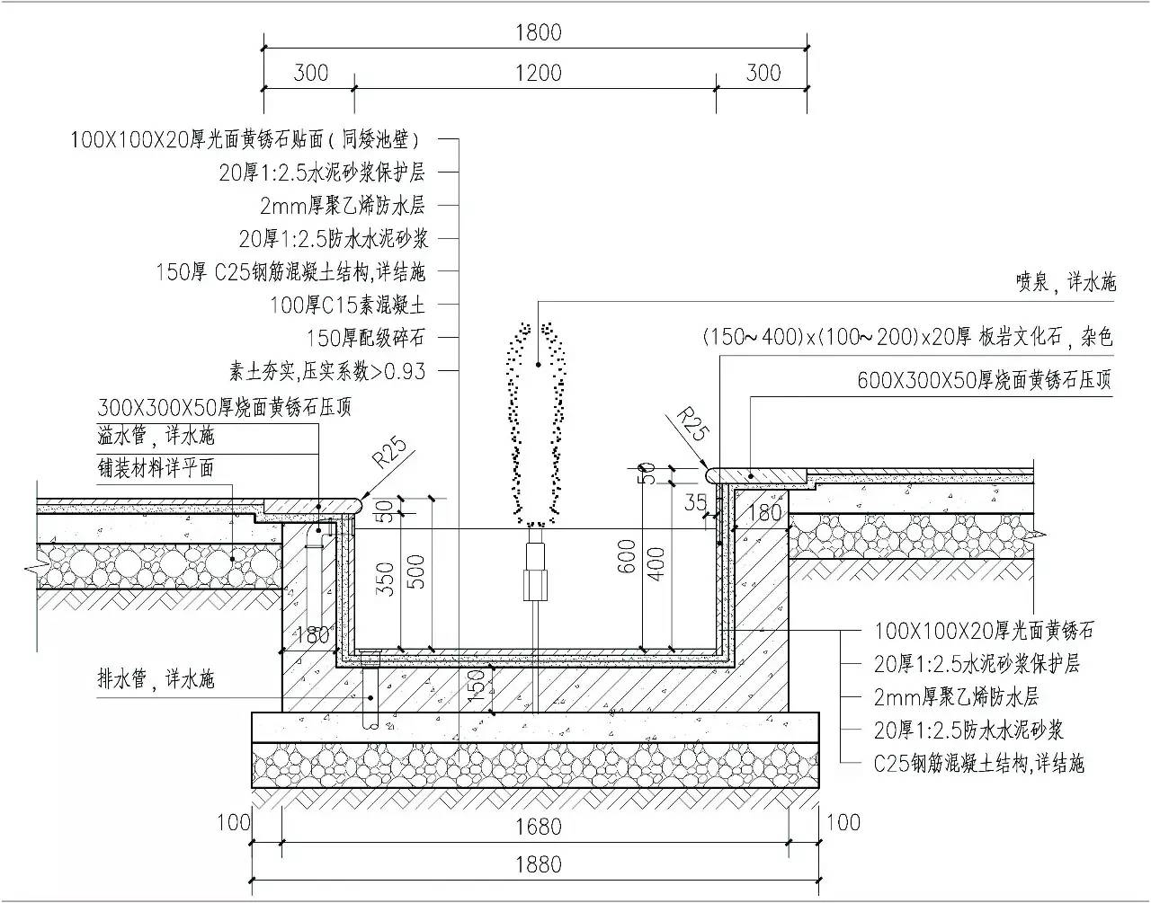
图片尺寸1280x1064
【文科设计手册】水景——景观水景设计(一)
图片尺寸1280x1005
钢框架游泳池结构施工图
图片尺寸1440x1020
9米深大型游泳池全套结构施工图
图片尺寸1440x1020
某新潮会所游泳池结构设计cad施工图(标注详细)
图片尺寸610x861
海怡花园居住区小品cad详图 1-5 泳池壁大样
图片尺寸1149x1051
某俱乐部游泳池施工图-图一
图片尺寸610x861
水池池底做法大样
图片尺寸1600x1310
某小区户外游泳池施工图
图片尺寸420x410
游泳馆游泳池cad施工图纸设计说明室内泳池训练馆方案施工素材
图片尺寸800x800
室外泳池设计标准化规范佳兆业
图片尺寸1113x718
游泳池施工图: 内容包含:泳池设备平面布置图,底排的安装大样图,水
图片尺寸610x432
度假村水吧泳池大样施工图
图片尺寸769x570
标准游泳池施工图下载
图片尺寸1024x2037
某室内游泳池详细设计图(dwg格式),内含平面图,立面
图片尺寸1311x927
10s605游泳池设计及附件安装
图片尺寸1409x973
室外泳池设计标准化规范佳兆业
图片尺寸787x1042
某大型俱乐部游泳池cad施工方案图,内含:游泳池平面图,溢水槽大样图
图片尺寸474x642
游泳池 平面图 cad 大样图 剖面图 铺装 ,cad游泳池,游泳池cad,游泳
图片尺寸800x565
具有代表性的小型游泳池cad施工详图
图片尺寸760x616