洗手池图例

图例
图片尺寸708x832
洗手盆安装标准指引hjsj2021
图片尺寸1080x1128
潮州批发卫生间 阳台立柱盆 洗漱洗脸洗面洗手盆池 陶瓷落地b3205
图片尺寸750x461
annwa/安华卫浴 家用陶瓷台下洗手盆nt41/ap4333
图片尺寸1920x1357
有图例但我看装修平面图差别不大怎么区分洗脸盆是立式还是台式图二三
图片尺寸2016x936
德国doporro简约人造石一体台盆挂墙式洗手盆洗脸盆台上盆大尺寸洗手
图片尺寸790x527
新协和 无障碍手动 洗面 洗手盆用 sk-256s 研磨 34mm
图片尺寸979x800
卫浴欧式单孔立柱盆复古洗手盆洗脸盆洗衣盆英国古典落地柱盆钛金色
图片尺寸987x552
高低洗手台设计标准指引hjsj2021
图片尺寸913x589
cad卫生间洗手盆
图片尺寸800x1079
立柱式洗手盆下水距墙尺寸为多少合适呢?专业师傅为你分忧解难
图片尺寸640x562
洗手台通用大样图下载施工图下载
图片尺寸1648x1165
toto洗手盆
图片尺寸790x602
图例
图片尺寸830x497
洗手池
图片尺寸1024x725
arrow箭牌卫浴圆形艺术洗手盆卫生间陶瓷洗脸盆台盆洗手盆台下盆嵌入
图片尺寸990x426
给排水常见图例
图片尺寸725x539
东鹏卫浴嵌入式台下盆洗脸盆家用陶瓷盆浴室洗手盆
图片尺寸750x585
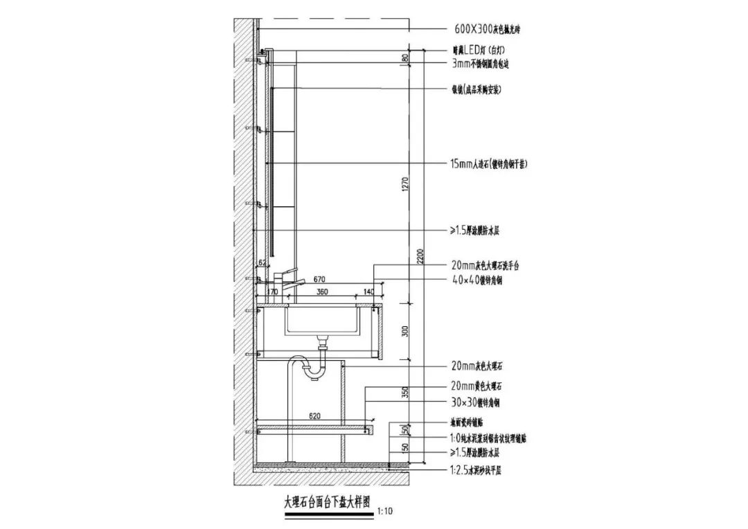
大理石洗手台如果装得好看每一次洗手都是快乐
图片尺寸1080x764
某市小区公共洗手间洗手盆结构布置cad参考详图
图片尺寸610x1137