浴缸立面图

浴缸,完整规划cad平立面图大样图和效果图,单体与总平面图吻合,彼此间
图片尺寸610x432
揭秘全球顶级酒店的浴缸设计
图片尺寸1619x925
【门店同款】roca卫浴(乐家)纽凯古典式独立铸铁浴缸1.
图片尺寸790x573
包邮珠光板欧式贵妃浴缸古典独立单人移动浴缸亚克力双层自洁保温_7折
图片尺寸750x622
浪鲸卫浴bf6022法芙娜系列浴室柜
图片尺寸1272x953
网友案例
图片尺寸640x461
某浴缸cad详细构造设计图平立面
图片尺寸610x432
亚克力浴缸
图片尺寸790x864
浴缸,内容包括:各方位的平面图 ,立面图和设计说明等,设计精准全面
图片尺寸610x432
男女坐在浴缸内cad图纸立面图素材下载
图片尺寸795x492
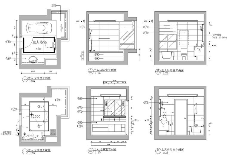
主卧浴室立面图
图片尺寸760x537
卫生间浴缸详图
图片尺寸800x600![[资料]浴缸详图](https://i.ecywang.com/upload/1/img0.baidu.com/it/u=172655026,3115507544&fm=253&fmt=auto&app=138&f=JPEG?w=560&h=432)
[资料]浴缸详图
图片尺寸560x432
浴室立面图
图片尺寸760x561
古典带脚铸铁浴缸
图片尺寸540x407
典型浴缸详图
图片尺寸820x587
浴室立面图
图片尺寸1516x704
浴缸cad立面图库
图片尺寸700x527
浴缸,内容包括:各方位的平面图 ,立面图和设计说明等,设计精准全面
图片尺寸610x861
toto正品 浴缸 fby1756p 铸铁猫脚浴缸 独立式 电镀金属支撑脚
图片尺寸658x495